EasyManua.ls Logo

Siemens 7VK512

Siemens 7VK512
132 pages
To Next Page IconTo Next Page
To Next Page IconTo Next Page
To Previous Page IconTo Previous Page
To Previous Page IconTo Previous Page
Loading...
$ESIGN6+
6
#
' #

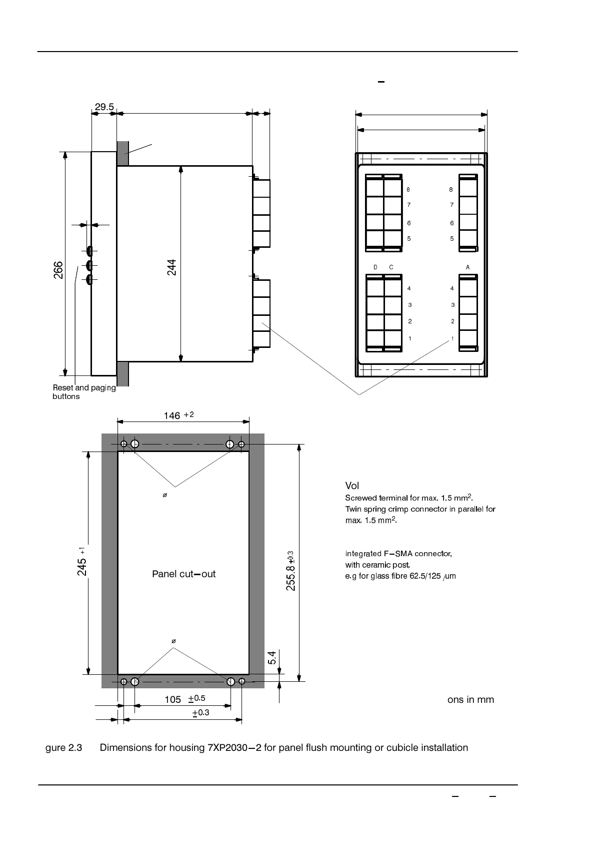
6+ (OUSING FOR PANEL FLUSH MOUNTING OR CUBICLE INSTALLATION 80
-OUNTING PLATE
#ONNECTOR MODULES
2ESET AND PAGING
BUTTONS
0ANEL CUT OUT









OR-
 

$IMENSIONS IN MM
6OLTAGE CONNECTORS
3CREWED TERMINAL FOR MAX  MM
4WIN SPRING CRIMP CONNECTOR IN PARALLEL FOR
MAX  MM
/PTICAL FIBRE CONNECTORS
INTEGRATED & 3-! CONNECTOR
WITH CERAMIC POST
EG FOR GLASS FIBRE 
UM

$# !

&IGURE  $IMENSIONS FOR HOUSING 80 FOR PANEL FLUSH MOUNTING OR CUBICLE INSTALLATION

Table of Contents

Related product manuals