EasyManua.ls Logo

Siemens SCALANCE XRH-300

Siemens SCALANCE XRH-300
110 pages
To Next Page IconTo Next Page
To Next Page IconTo Next Page
To Previous Page IconTo Previous Page
To Previous Page IconTo Previous Page
Loading...
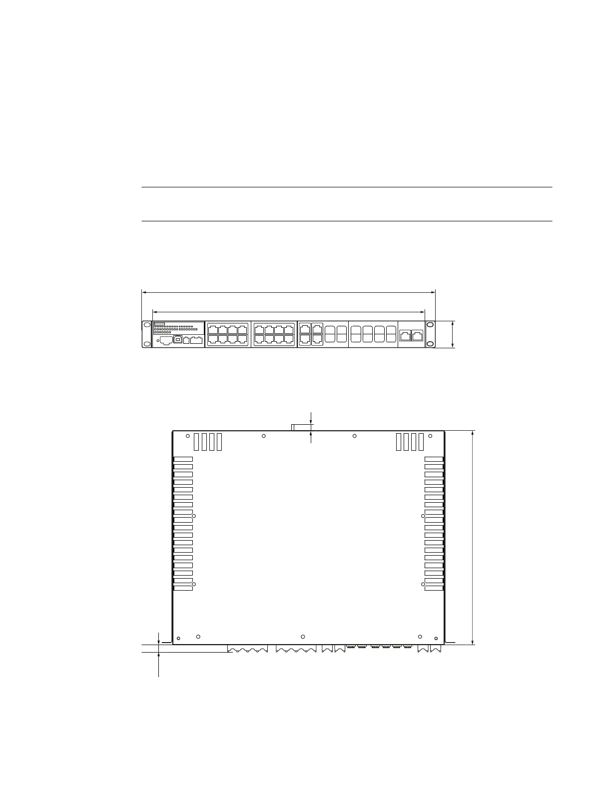
Dimension drawings
10
10.1 Dimension drawings SCALANCE XRM-300
Note
Dimensions are speci󹪝ed in mm.
Front view



Figure 10-1 Width and height based using the example of a 24 V AC/DC device version
Top view of the 24 V AC/DC device versions



Figure 10-2 Depth
SCALANCE XRH-300/XRM-300
Equipment Manual, 10/2022, C79000-G8976-C546-01 97

Table of Contents

Related product manuals