EasyManua.ls Logo

SLE 2000 - Page 45

SLE 2000
66 pages
Print Icon
To Next Page IconTo Next Page
To Next Page IconTo Next Page
To Previous Page IconTo Previous Page
To Previous Page IconTo Previous Page
Loading...
Page 45 of 66
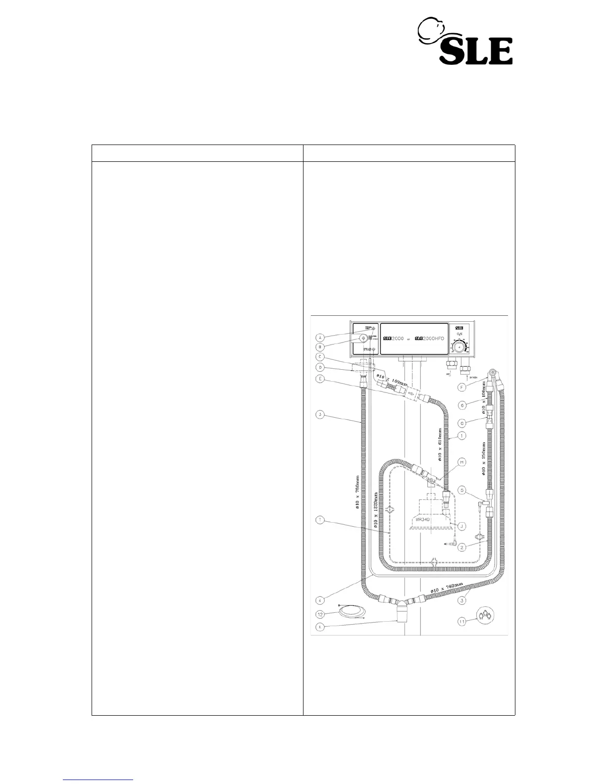
REUSABLE 10mm HEATED PATIENT CIRCUIT (SLE Part Nº N2391)
This circuit must be clean and sterilised before use. It is designed to be used
with an SLE 2000 or SLE2000HFO Infant Ventilator in combination with a Servo
controlled humidifier - typically a Fisher and Paykel or equivalent..
DIRECTIONS FOR USE CAUTIONS
Clean and sterilise before and after subsequent use of 7
days maximum. It is recommended that a high quality
bacteria filter (SLE part no. N2029) is fitted at the fresh gas
connection to the humidifier inlet, however the circuit may be
used without. Connect the patient circuit as shown in the
diagram and described below. Drain water trap regularly by
removing the bottom cup. (Circuit pressure is not lost when
cup is removed).
1. HUMIDIFIER SUPPLY LINE
If a bacteria filter is being used, fit the short piece of tube
ITEM C to the ventilator outlet marked ‘Fresh Gas to Patient’.
Fit the bacteria filter into this tube. Take the loose length of
tube ITEM 1 and connect the free end of this to the bacteria
filter and the adaptor end to the humidifier inlet. If a bacteria
filter is not being used, connect the loose length of tube ITEM
1 directly between the ‘Fresh Gas to Patient’ ventilator outlet
and the humidifier inlet.
2. INSPIRATORY SUPPLY LINE
Take the main patient circuit and fit the tube with the large
connector to the humidifier outlet. Plug the humidifier heated
wire supply onto electrical connector ITEM H
3. EXPIRATORY SUPPLY LINE
Take the tube with the connector and fit to the exhalation port
of the ventilator. Position water trap in an upright position at
the lowest point in the circuit limb.
4. PROXIMAL AIRWAY PRESSURE LINE
Connect the small diameter clear tube from the patient circuit
to the proximal airway port on the ventilator.
5. TEMPERATURE MONITORING
Two ports are provided for dual temperature probes, one in
the connector on the humidifier outlet (next to the heated
wire inlet) and a second port in the ET Manifold ITEM 5.
STERILISING (Maximum Temperature 134°C)
Dismantle circuit parts and water container for cleaning.
Steam autoclave only, at a recommended temperature of
121°C for 20 minutes.Allow 15 minutes dry time and return to
ambient temperature before assembly and use.
DIAGRAM INDEX
A P roximal Airway Inlet
B Ex ha la t io n P o rt ( Fr o m Pa t ie nt )
C Ø10 x 100 Tube Assembly Part Nº N2998/04
D Single Use Bacteria Filter - Optional Part Nº N2187 or
N2587
E Autoclavable Bacteria Filter - Optional Part Nº N2029
F ET Manifold Part NºN3145
G Red Metal Restrictor Part NºN2266
H Heater Connection - Dual Servo Hose Assy Part Nº N3510
J Hu m i d i f i e r C h a m b e r - R e f e r e n c e o n l y
K Water Trap Part Nº N3139
T Temperature Probe - Reference only
1 Humidifier Supply Line - Ø10 x 610 Part Nº N2998/24
2 Inspiratory Supply Line - Ø10 x 250 Pt No.N2998/10 &
Ø10 x 1220 Pt No.N2998/48
3 Expiratory Supply Line - Ø10 x 760 Pt No.N2998/30
(x2)+Adaptor No.N3148 (x5)
4 Proximal Airway Pressure Line - i/Ø 1/8” x o/Ø 1/4” x 1830
Part Nº.N2030
Make sure that all connections are made properly and are
tight before use.
For circuit heating, follow the directions provided with the
humidifier
Do not use in applications where gas temp. at outlet of
humidifier exceeds 55ºC.
Do not cover the patient circuit with anything which may
cause the tube to overheat.
Do not autoclave water trap if medications containing
chlorinated or aromatic hydrocarbons are used or with the
water container fitted.
Avoid resting the patient circuit against patient skin
Keep water trap upright with cup at bottom. Empty container
before water reaches MAX Level Line. Make sure the drain
cup is secure.
5 Temperature Monitoring - Probe Port Housing Tee Part
N3146
6 Inspiratory Supply Line - Ø10 x 100 Tube Assembly Part Nº
N2998/04
11 Hose Clips - Secure Temperature Probe Lead Part Nº
N3049
12 Draw Wire - Tool for Assembly of Heater Wire. Part Nº
N3071

Related product manuals