EasyManua.ls Logo

SLE 2000 - Patient Circuit Connection; Humidifier Supply Line Connection; Inspiratory Supply Line Connection; Expiratory Supply Line Connection

SLE 2000
66 pages
Print Icon
To Next Page IconTo Next Page
To Next Page IconTo Next Page
To Previous Page IconTo Previous Page
To Previous Page IconTo Previous Page
Loading...
Page 44 of 66
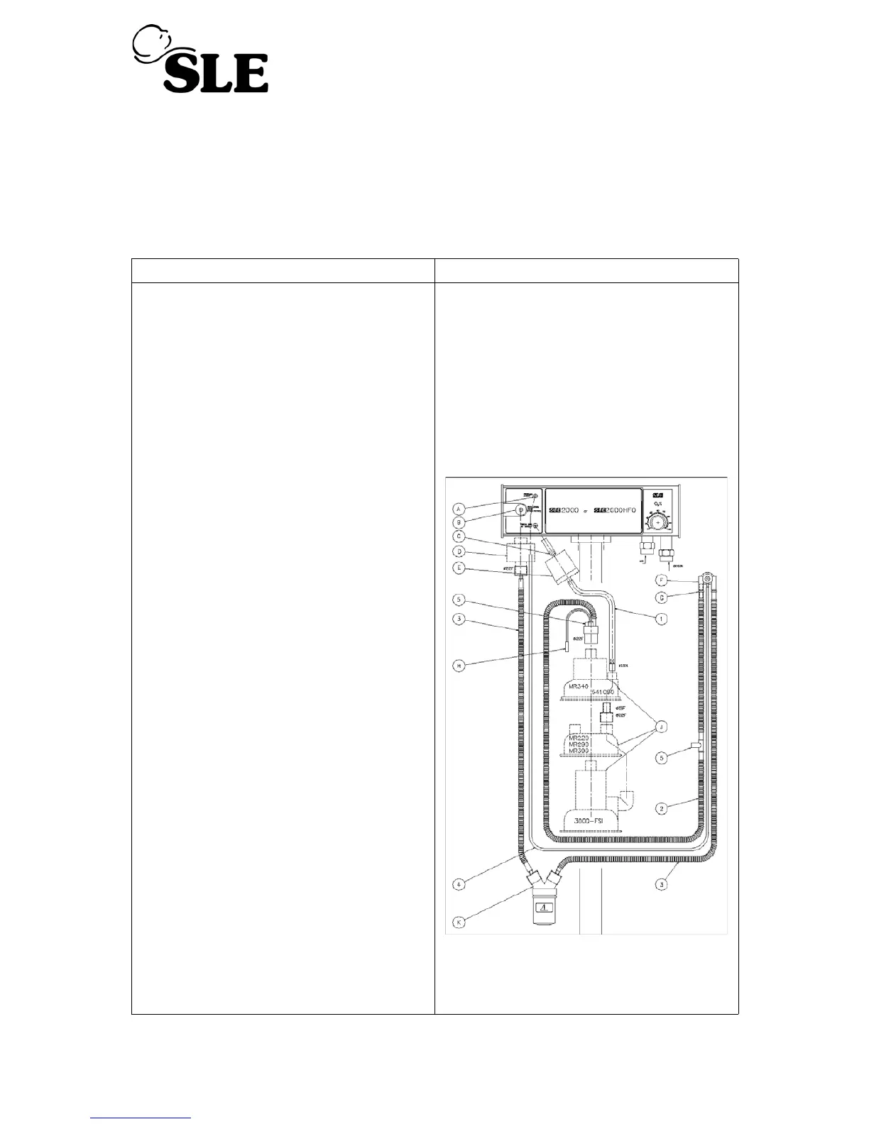
13. Patient Circuit Connection
SINGLE USE HEATED PATIENT CIRCUIT (SLE Part Nº N2188)
Temperature port 450mm from ET Manifold.This non-sterile circuit is for single
patient use only. It is designed to be used with an SLE2000 or SLE2000HFO
Infant Ventilator in combination with a Servo controlled humidifier - typically
SLE3000, Fisher and Paykel or equivalent.
DIRECTIONS FOR USE CAUTIONS
It is recommended that a high quality bacteria filter (SLE part
No. N2029) is fitted at the fresh gas connection to the
humidifier inlet, however the circuit may be used without.
Connect the patient circuit as shown in the diagram and
described below. Drain water trap regularly by removing the
bottom cup. (Circuit pressure is not lost when cup is
removed).
1.HUMIDIFIER SUPPLY LINE
If a bacteria filter is being used, fit the very short piece of
transparent tube to the ventilator outlet marked “Fresh Gas to
Patient”. Fit the bacteria filter into this tube. Take the loose
length of blue pipe and connect the small end of this to the
bacteria filter and the larger end to the humidifier inlet. If a
bacteria filter is not being used, connect the loose length of
blue tube directly between the “Fresh Gas to Patient”
ventilator outlet and the humidifier inlet.
2. INSPIRATORY SUPPLY LINE
Take the main patient circuit and fit the blue tube with the
large connector to the humidifier outlet. Plug the electrical
connector into the humidifier heated wire supply.
3. EXPIRATORY SUPPLY LINE
Take the clear tube with the large connector and fit to the
exhalation port of the ventilator. Position water trap in an
upright position at the lowest point in the circuit limb.
4. PROXIMAL AIRWAY PRESSURE LINE
Connect the small diameter clear tube from the patient circuit
to the proximal airway port on the ventilator.
5. TEMPERATURE MONITORING
Two ports are provided for dual temperature probes, one in
the connector on the humidifier outlet (next to the heated
wire inlet) and a second port in the blue tube close to the ET
connector.
DIAGRAM INDEX
A. Proximal Airway
B. Exhalation Port (from patient)
C. Short Tube
D. Single Use Bacteria Filter SLE Part Nº N2587 or N2187
E. Autoclavable Bacteria Filter SLE Part NºN2029
F. ET Manifold
G. Red Restrictor
H. To Heater Wire Adaptor
J. Humidification Chamber
K. Water Trap
Make sure that all connections are made properly and are
tight before use.
For circuit heating, follow the directions provided with the
humidifier.
Do not use in applications where gas temperature at outlet of
humidifier exceeds 55ºC.
Do not cover the patient circuit with anything which may
cause the tube to overheat.
Avoid resting the patient circuit against patient skin.
Keep water trap upright with cup at bottom.
Make sure the drain cup is secure.

Related product manuals