EasyManua.ls Logo

SMA STRING-COMBINER DC-CMB-U15-16 - Übersicht über den Anschlussbereich DC-CMB-U15-32

SMA STRING-COMBINER DC-CMB-U15-16
108 pages
Print Icon
To Next Page IconTo Next Page
To Next Page IconTo Next Page
To Previous Page IconTo Previous Page
To Previous Page IconTo Previous Page
Loading...
24
Installationshandbuch
SMA Solar Technology AG
DC-CMB-IA-U15-xx-de
6 Elektrischer Anschluss
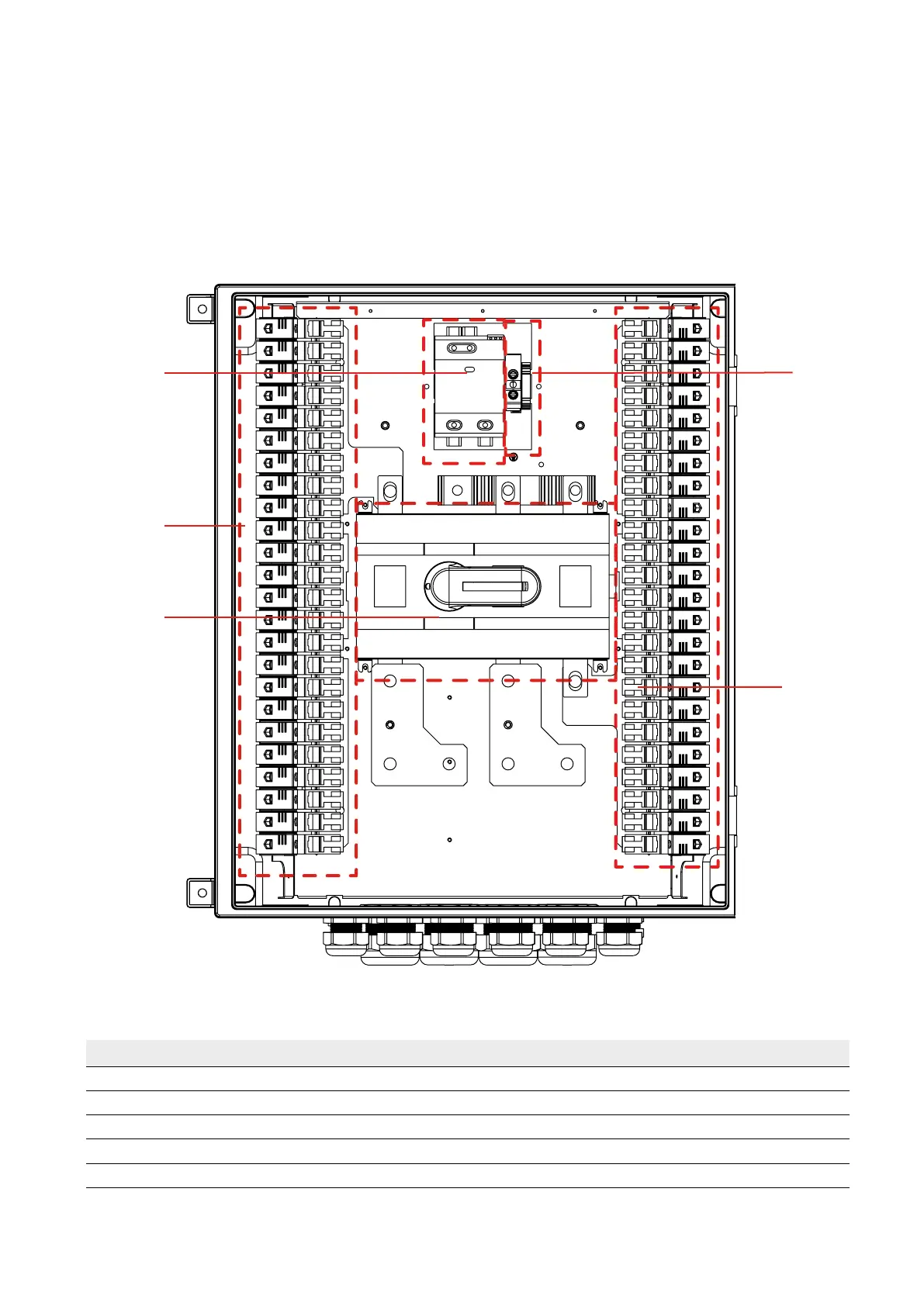
6.3.6 Übersicht über den Anschlussbereich DC-CMB-U15-32
Die Ausstattung der Combiner Box hängt von den Bestelloptionen ab. In den Übersichtsdiagrammen wird die maximale
Konfiguration der Combiner Box angezeigt.
Combiner Box mit Kabelverschraubungen für die Kabel der Stränge:
Abbildung 13: Anschlüsse (wie im DC-CMB-U15-32 veranschaulicht)
Position Bezeichnung
A Positiveingang Strangsicherungshalter
B Negativeingang Strangsicherungshalter
C Überspannungsschutzgerät
D Schalter
E Erdungsleiter
A
D
C
E
B

Table of Contents