EasyManua.ls Logo

SMA STRING-COMBINER DC-CMB-U15-16 - Vue Densemble de la Zone de Connexion DC-CMB-U15-24

SMA STRING-COMBINER DC-CMB-U15-16
108 pages
Print Icon
To Next Page IconTo Next Page
To Next Page IconTo Next Page
To Previous Page IconTo Previous Page
To Previous Page IconTo Previous Page
Loading...
22
Manuel d’Installation
SMA Solar Technology AG
DC-CMB-IA-U15-xx-fr
6 Branchement Électrique
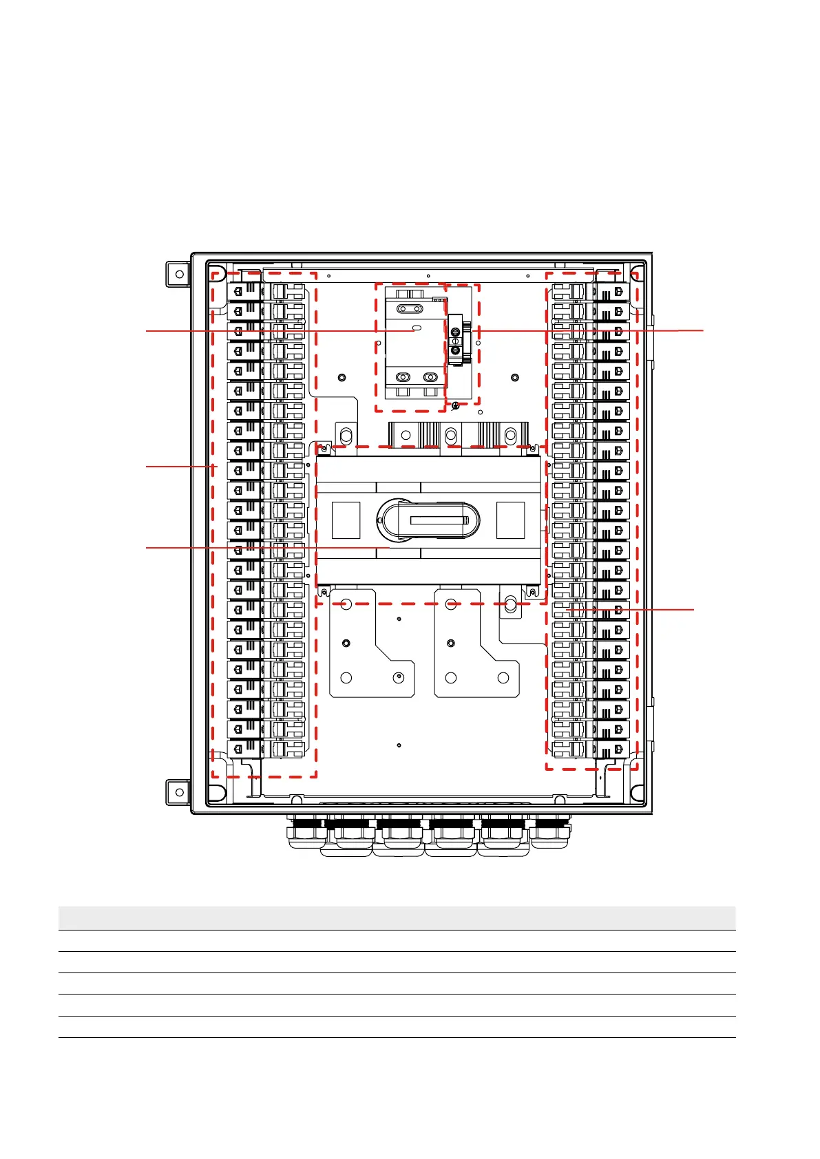
6.3.4 Vue d’ensemble de la Zone de Connexion DC-CMB-U15-24
Les caractéristiques du Coffret de Regroupement dépendent de l’option de commande. La configuration maximale du
Coffret de Regroupement est indiquée dans les schémas d’ensemble.
Coffret de Regroupement avec presse-étoupes pour les câbles des chaînes :
Figure 11 : Branchements (comme indiqués dans l’exemple dans le DC-CMB-U15-24)
Position Designation
A Porte-fusible de chaîne d’entrée positive
B Porte-fusible de chaîne d’entrée négative
C Dispositif de protection contre les surtensions
D Interrupteur
E Borne de mise à la terre
A
D
C
E
B

Table of Contents