EasyManua.ls Logo

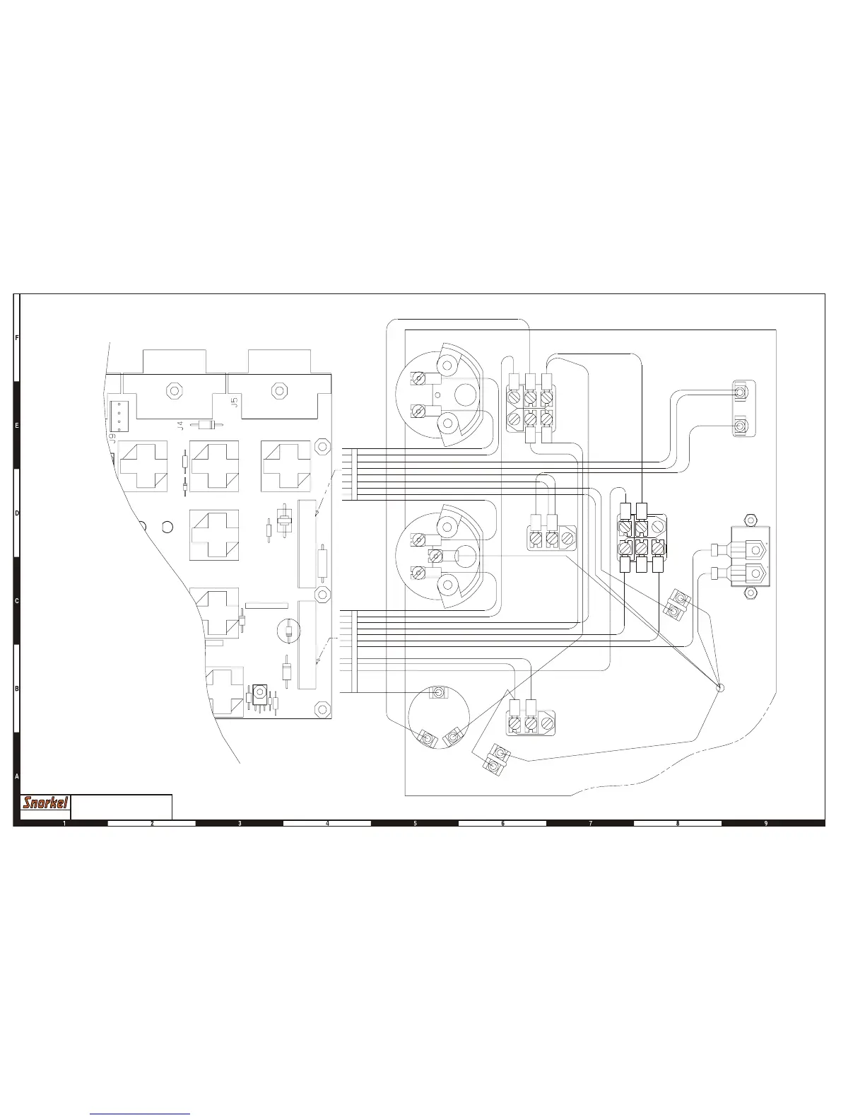
Snorkel S3370RT - Ground Box Drawing - Sheet 2

Snorkel S3370RT
134 pages
Print Icon
To Next Page IconTo Next Page
To Next Page IconTo Next Page
To Previous Page IconTo Previous Page
To Previous Page IconTo Previous Page
Loading...
TITLE
Ground Box Sheet 2
Snorkel Models SR3370
& SR2770
Ground box drawing - sheet 2
Page 3-12

Table of Contents

Other manuals for Snorkel S3370RT

Related product manuals