EasyManua.ls Logo

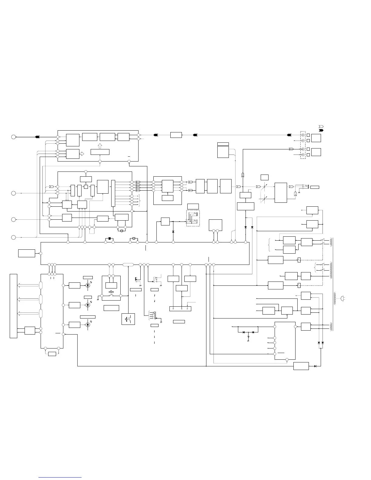
Sony MDS-JB930 - Diagrams - Main Section; Main Section Block Diagram

Sony MDS-JB930
74 pages
Print Icon
To Next Page IconTo Next Page
To Next Page IconTo Next Page
To Previous Page IconTo Previous Page
To Previous Page IconTo Previous Page
Loading...
3232
05
X200
45MHz
LED DRIVE
Q756
ROTARY
ENCODER
FL DRIVE
Q781, 782
D756
STANDBY
D757
FILTER
LED DRIVE
Q757
A/D CONVERTER
IC100
SDTO
ADDT
DADT, BCK, LRCK
AINL
R-CH
R-CH
BICK
LRCK
CDTI
CCLK
CS
XTI
AINR
(Page 31)
LINE AMP
IC103
MUTING
Q200 – 203
MUTING
CONTROL SWITCH
Q702
BUFFER
IC241
SIRCS
BUFFER
Q800
BUFFER
Q870, 871
BUFFER
Q802
REMOTE CONTROL
RECEIVER
IC761
OSC
RV760
REC LEVEL
A
B
AB
J100
RV790
PHONE
LEVEL
R-CH
R-CH
R-CH
D704
D703
–1
–2
LINE
(ANALOG)
IN
LINE
(ANALOG)
OUT
J790
PHONES
L
R
L
R
DALATCH
ADLATCH
DA
P4
P2
P1
COM24
COM23
DVOL1
DVOL0
MUTE
DARST
CP
CS
+5V
REGULATOR
IC205
+7V
REGULATOR
IC703
–7V
REGULATOR
IC702
–32V
REGULATOR
IC701
POWER ON/OFF
RELAY DRIVE
Q701
+5V
REGULATOR
IC705
+3.3V
REGULATOR
IC192
+5V
REGULATOR
IC102
–32V
(FL DRIVER (IC771) B–)
AC IN
AC
(TO FL781)
RY700
RY701
T701
POWER
TRANSFORMER
UNREG +12V
LOADING MOTOR DRIVER (IC400) B+
+3.3V
MD MECHANISM DECK SECTION,
DIGITAL IN/OUT CIRCUIT B+
+5V
MD MECHANISM DECK SECTION B+
BACK UP +3.3V
BT701
LITHIUM
BATTERY
RECT
D706
RECT
D720, 721
D701
D719
D800
D710 D709
D700
+7V
VCC
AUDIO
CIRCUIT
–7V
RECT
D722, 723
RECT
D711, 712
RELAY B+
RECT
D715 – 718
POWER DOWN
DETECT
IC704
79, 80, 139 – 60 3 – 37
AD1 – AD3
97, 95 – 93
KEY0 – KEY3
COM01 – COM22
SEG01 – SEG35
SEG01 – SEG35
SEG36 – SEG38
G23
G24
G01 – G22
FLUORESCENT INDICATOR TUBE
FL781
FL/LED DRIVER
IC771
AUDIO
INTERFACE
CONTROLLER
HIGH-PASS
FILTER, DIGITAL
ATTENUATOR
CLOCK GENERATOR,
CLOCK DIVIDER
CONTROL
REGISTER
INTERFACE
PLM & BUFFER
A/D CONVERTER
BLOCK
SUB-
TRACKTION
MODE
CONTROL
CLOCK
BUFFER
CLOCK
GENERATOR
1024FS CLOCK
BUFFER
TIMING
CONTROL
+5V
A/D CONVERTER (IC100) B+
(FOR ANALOG SECTION)
+5V
A/D, D/A CONVERTER (IC100, 200) B+
(FOR DIGITAL SECTION)
SYS +3.3V
+5V
D/A CONVERTER (IC200) B+
(FOR ANALOG SECTION)
A1OUT
A1IN
D/A CONVERTER
IC200
CURRENT PULSE
IC204
DATA
IN1+
IN1–
IN2+
IN2–
I01+
I02–
I02+
I01–
DADT
BCK
LRCK
BCK
LRCK
SWDT
SCLK
L1+
R-CH
BCK
ATT
XIN
64FSI
XOUT
64FSO
FLDATA
FLCLK
FLCS
JOG0
GND
SW
JOG1
MONO/ST
SOURCE
TIMER
KBDTIN
KBCLKIN
KBCLKOUT
P.DOWN
STB
AMS ±
PUSH ENTER
S713
S701 – 706, 711, 712,
S714, 716, 721 – 724,
S732, 733, 731
A
B
SHIFT
SWDT
SCLK
LATCH
LRCK
RMC
OSCI
C772, R772
OSCO
256FSO
128FSO
MCLKI
LVCKO
OVFLAG
PD
MIX AMP
IC243 (1/2)
LOW-PASS
FILTER
IC243 (2/2)
ROTARY
ENCODER
RV760
HEADPHONE
AMP
IC790
L1–
L2+
L2–
R1+
R1–
R2+
R2–
INIT
(Page 31)
SWDT, SCLK
(Page 31)
512FS
(Page 31)
S/P
ATT & IIR
FIR
OVERFLOW
DETECTOR
ATT & L.I.P.
NOISE
SHAPER &
REGISTER
SWITCHING
CIRCUIT
CONTROL
CIRCUIT
3
ANA5
4
SYS3.3
5
KEY+5V
PH5
1
BACK
6
STBY
2
S.RESET
12
J800
CONTROL
A1 II
SYS +3.3V
S746
REC MODE
S741
INPUT
S751
TIMER
J701
KEY BOARD
SIGNAL PATH
: PLAY (ANALOG OUT)
: REC (ANALOG IN)
RESET
SDA
SCL
EEPROM
IC171
XIN
SDA
SCL
XOUT
X800
10MHz
XT-IN
XT-OUT
X801
32.768kHz
STEREO
MONO
REC
OFF
PLAY
ANALOG
COAX DIGITAL
OPT2 DIGITAL
OPT1 DIGITAL
SYSTEM CONTROLLER
IC800 (2/2)
REGULATOR
IC700
S.RST
3
2
4
47
54
43
41
6 7 8 48 40 2829
5
32
33
37
36
25
24
20
21
28
27
24
25
4
5
2
1
52
19
13
12
11
15
16
17
9
2
3
8740
6
35 37 34
70 69 68
65 66
2 1
31
88 82 7 61
5 6
66 42 43
100 92 91 19 12 84
8313 15 11 10
4
67
5
62
61
75
D759
PITCH CONTROL
LED DRIVE
Q759
73
72
D
C
B
A
POWER ON/OFF
RELAY DRIVE
Q700
BUFFER
Q872, 873
KEY+5V
1
5
4
DATA
CLK
VCC
21 20 27
MDS-JB930
6-2. BLOCK DIAGRAM – MAIN Section –

Other manuals for Sony MDS-JB930

Related product manuals