EasyManua.ls Logo

Sony PMC-D307L - Circuit Diagrams and Board Layouts; Block Diagrams for System Sections

Sony PMC-D307L
52 pages
Print Icon
To Next Page IconTo Next Page
To Next Page IconTo Next Page
To Previous Page IconTo Previous Page
To Previous Page IconTo Previous Page
Loading...
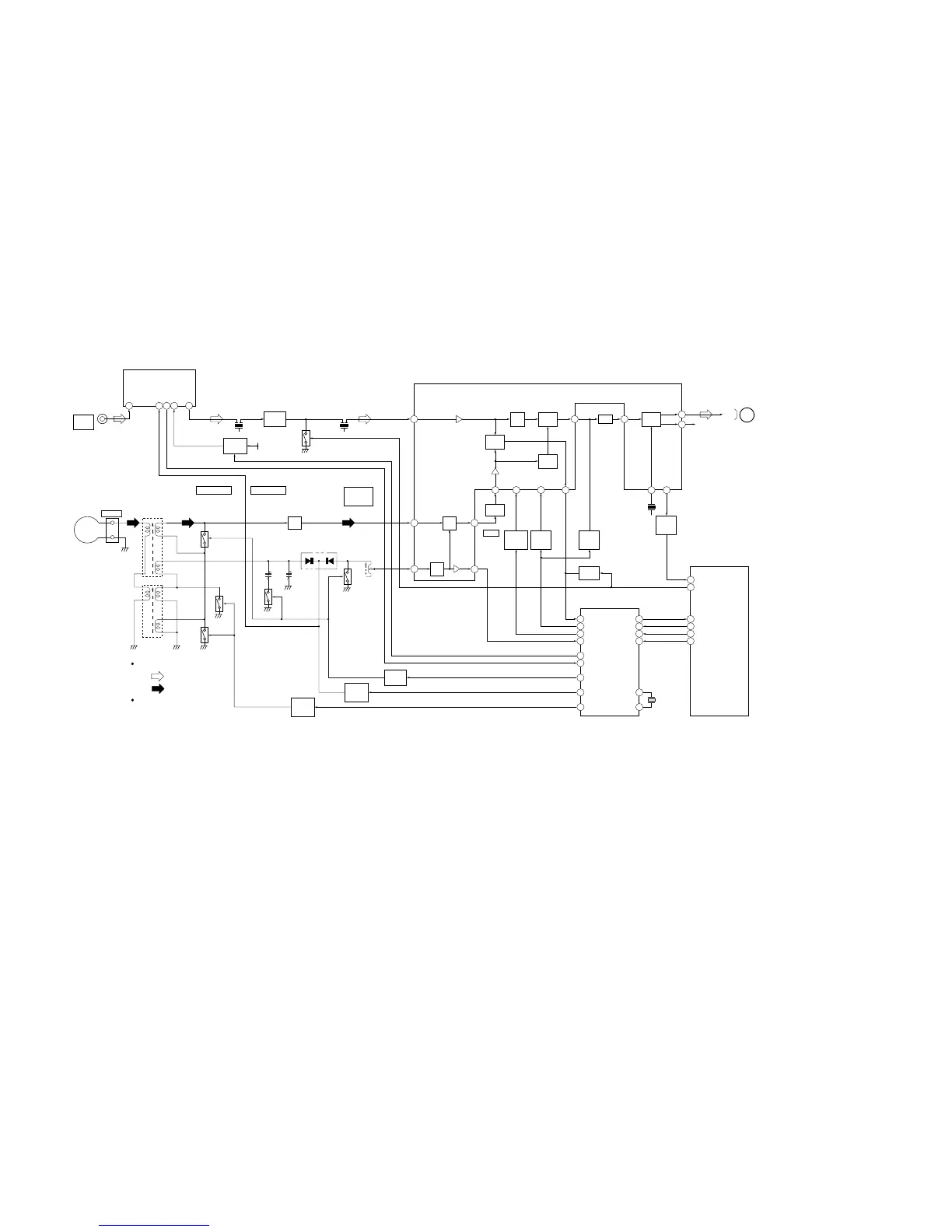
6-1. BLOCK DIAGRAM — TUNER SECTION —
PMC-D307L
– 18 – – 19 –
SECTION 6
DIAGRAMS
1 5 8 6
6
7
3
19
14 7
24
181514
17 16
11
7
ANT
VT
OSC OUT
VCC
IF OUT
TU1
TUNER UNIT
CF1 CF2
IF AMP
Q4
LW SW
Q22
VT
CONTROL
Q13
MW SW
Q21
FM B+SW
Q24
RADIO7.5V
CNP2
EXT ANT
FM
FM
DET
T1
FM/AM
BUFFER
FM
MPX
STEREO
SW
Q17
AM
HI-CUT
Q9
IF SW
Q11
BAND
SW
Q10
MONO-ST
SW
Q12
AM
DET
IF
BUFFER
CFT1
AM
MIX
AMP
Q6
AM
OSC
12
13 10
24
AM
IF IN
MO-ST
BAND
IF OUT
DET
OUT
22
AM
RF IN
FM
IF IN
AM
OSC
OSC
OUT
MIX
OUT
MPX
IN
L OUT
R OUT
R-CH
L-CH
ST-IND
VCO
CF4
R ST
95
B MUTE
R COUNT
R DAT
R CLK
R CE
CFT1
AM IF
IF IN CD
6
DA
5
CK
4
25
26
27
28
CE
XOUT
XIN
13
P6
9
MO/ST
16
AM IN
8
FM
17
FM IN
10
LW
21
PD1
11
1
2
MW
X1
75kHz
PLL
IC2
SYSTEM CONTROL
IC801 (1/3)
TAPE SECTION
A
L4
AM OSC
LW
SW
Q5
LW
SW
Q7
CT5 CT4
D5
CNP1
MW/LW LOOP
ANTENNA
L5
LW RF
L3
MW RF
MW SW
Q3
MW SW
Q2
LW SW
Q1
L4CT4, L3
LW
FREQUENCY
COVERAGE
MW TRACKING
CT5, L5
LW TRACKING
FM/AM RF AMP, OSC, IF AMP, DET
IC1
04
IF MUTE
Q8
MW/LW
Signal Path
R-ch : same as L-CH.
: FM
: MW/LW

Related product manuals