EasyManua.ls Logo

Sony SLV-L49 - Servo;System Control Block Diagram

Sony SLV-L49
125 pages
Print Icon
To Next Page IconTo Next Page
To Next Page IconTo Next Page
To Previous Page IconTo Previous Page
To Previous Page IconTo Previous Page
Loading...
SLV-L49/L52/L59/L69HF/L72HF/L79HF/L89HF/X55/X66HF
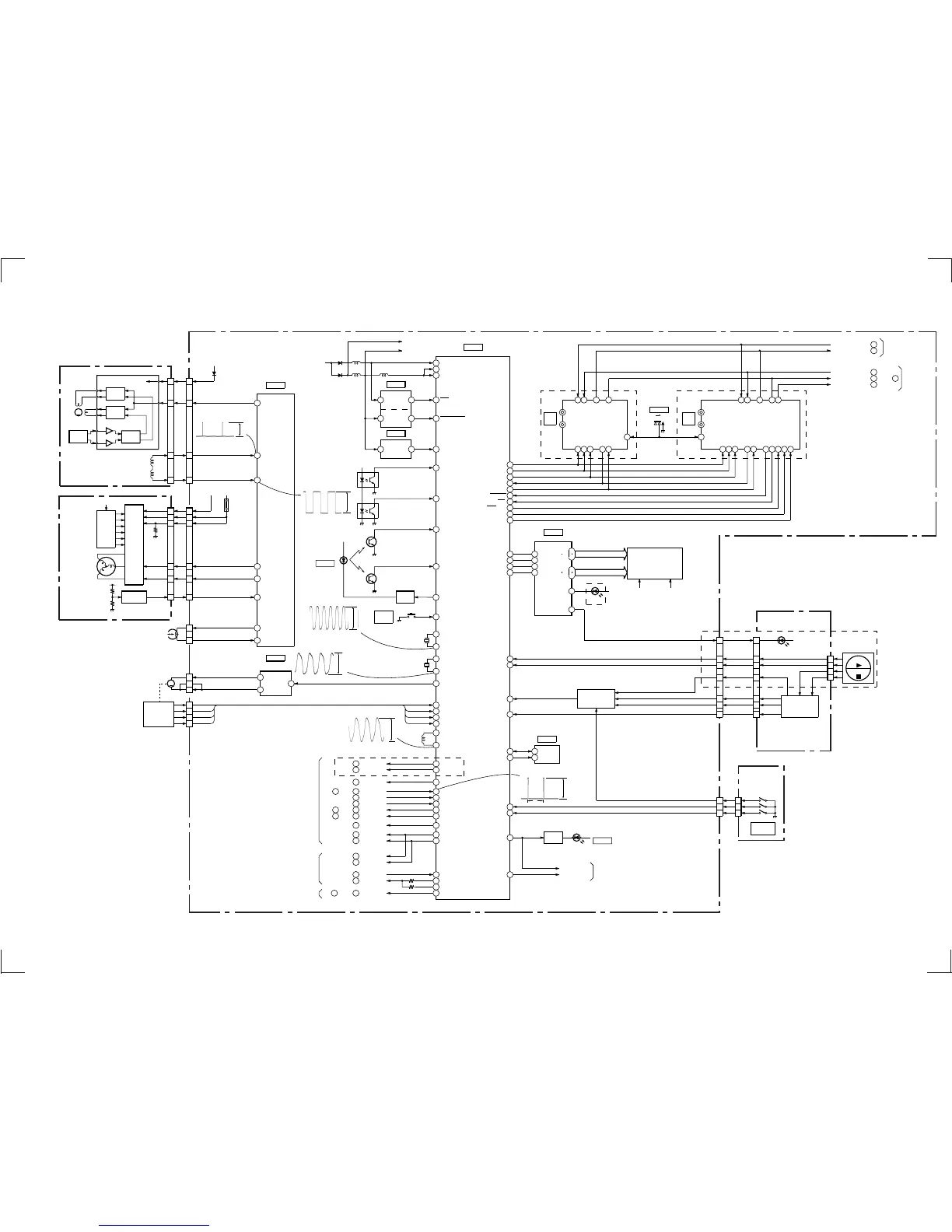
3-3. SERVO/SYSTEM CONTROL BLOCK DIAGRAM
3-5 3-6
MA-341 BOARD
DRUM MOTOR
OUTPUT
HALL
DEVICE
M901
M902
HALL
DEVICE
U+
OUTPUT
MATRIX
M
VCC
1
2
3
4
PG
FG
CAPSTAN
FG
U-
V+
V-
W+
W-
U
LIMITER
SW5V
V
W
VM
VCC
TL
1
6
5
2
3
7
1
6
5
2
3
7
CN102
SW5VM12V
PS101
CVS
CAP RVS
CAP FG
D109
1
2
3
4
CN101
M12V
M12V
D VS
D PG
D FG
1
CN161
3
CTL
HEAD
1
CN103
3
2
M
LOADING
MOTOR
4
2
3
1
CAM
ENCODER
MECHA
POSITION
CN103
MODE1
MODE2
MODE3
MODE4
IC160
SERVO CONTROL
(2/3)
DRUM ERR
77
DRUM PG
90
DRUM FG
89
CAP RVS
24
CAP FG
87
CTL +
95
CTL -
94
LOADING
MOTOR DRIVE
IC101
CAM -
2
CAM +
10
4IN2
SYSTEM CONTROL
(3/3)
S REEL FG
79
PH102
T REEL
FG
LED
DRIVE
Q103
T REEL FG
80
4fSC IN
38
SW12V
PH101
S REEL
FG
T/S LED
D103
T SENS
7
S SENS
6
END LED
20
Q101
TAKE END
SENSOR
D103
D5V
Q102
SUPPLY END
SENSOR
REC PRF30
4fSC OUT
39
X160
14.31818MHz
REC
PROOF
S101
CAM
33
29
28
27
26
MODE1
MODE2
MODE3
MODE4
MODE1
MODE2
MODE3
MODE4
16
CAPSTAN
MOTOR
CAP ERR
76
S102
REMOTE
CONTROL
RECEIVER
2
RESET
PULSE
GEN.
POWER
FAIL
DET.
6
8
5
7
1
IC162
IC403
L162
D162
D6V
VCC
37
AVCC
99
AMP VCC
98
RST
34
POWER FAIL
78
32kHz IN35
32kHz OUT
36
X161
32.768kHz
REMCON
14
L161
D161
L163
D5V
UNSW 5V
S401,402,404,405
L89HF MODEL
S408,412,422,423
OSC IN
44
OSC OUT
45
L500
ARC DATA
42
ARC CLK
41
Q VD
13
C SYNC
58
V RF ENV
8
ENV SW
17
HA SWP
16
RF SWP
18
I2C DATA
72
I2C CLK
71
ARC DATA
CN570
2
C SYNC
,IC260
5
ARC CLK
CN570
3
Q VD
IC201
25
RF ENV
IC260
6
ENV SW
IC260
2
HA SWP
,IC260
3
RF SWP
,IC260
4
I2C DATA
IC201
20
I2C CLK
IC201
21
IC201
97
IC201
28
IC201
98
L52/L72HF/L89HF MODEL
AF ENVIC360
44
AF ENV
9
I2C DATA
IC360
42
I2C CLK
IC360
43
AF SWP
19
AF REC P
22
A MUTE
63
AF SWPIC360
41
A MUTE
,IC201
94
TO/FROM
VIDEO
BLOCK
TO/FROM
AUDIO
BLOCK
TO AUDIO
BLOCK
Q301
B
IN
OUT
L49/L52/L59
X55 MODEL
3 CH 4 CH
S701
RF UNIT
IC160IC160
TU700
5
VIDEO
1
AUDIO
28
DET
37
R
DATA
13
CLOCK
12
ENABLE
11
AFT
27
CONT
4
IN
OUT
VHF/
UHF
TU701
DATA
13
CLOCK
12
ENABLE
11
AFT
27
CONT
4
2SW
SW
2
5
VIDEO
1
AUDIO
28
DET
25
MPX
38
L
ST IND
32
SAP IND
33
MODE
34
F MONO
35
MUTE
36
59
PLL CLK
60
PLL DATA
61
PLL ENABLE
3
TU AFT
21
ANT SEL
85
STEREO
86
SAP
83
MAIN/SAP
84F MONO
62TA MUTE
31
I2C CLK
32
I2C DATA
5
6
5
EEPROM
IC161
VACUUM FLUORESCENT
INDICATOR TUBE
ND420
69S IN
IC420
FL DRIVER
68S OUT
70S CLK
66FLD CS
82
DMS -
15
30
43
38
D OUT
5
D IN
6
CLK
8
CS
9
46
ARC
47
JOG
S1
S16
G2
G7
D410
F - F +
VHF/
UHF
L69HF/L72 HF//79HF/
L83HF/X66HF MODEL
81DMS +
FUNCTION
KEY
5
FUNC KEY1
4
FUNC KEY2
RF VIDEO Q500
C
TU VIDEO IC201
39
RF AUDIO IC360
13
AUDI R IC360
3
AUDIO L IC360
2
,IC201
78
FROM
VIDEO
BLOCK
TO/FROM
AUDIO
BLOCK
CN411
9
3
9
3
8
7
8
7
4
2
6
4
2
CN404
JOG LED
DMS DOWN
DMS UP
EJECT JOG
CH - REW
PB/STOP
FF
D441
FUNCTION
KEY
S441,445,447
(L89HF MODEL)
S442-444,446
(EXCEPT L89HF MODEL)
6
CN442
1
2
4
3
PLAY
STOP
DUAL MODE
SHUTTLE
DS-84 BOARD
L89HF MODEL
CN402
3
2
1
TIMER SEE
KKP -
KKP +
3
2
1
BOARD
DI-70
DIAL TIMER
PUSH/TURN
S901
12
KKP -
11KKP +
LED
DRIVE
Q401
64
P CONT M12
65
P CONT SW12
P CONT M12
P CONT SW12
POWER
D405
TO
POWER BLOCK
C ROT
15
C ROT
IC201
96
(SEE PAGE 4-9,13)
(SEE PAGE 4-23)
(SEE PAGE 4-22)
IC160
5.0Vp-p
14.31818MHz
4fsc (out)
REC/PB
IC160 $∞
4.6Vp-p
24.9MHz
OSC OUT
REC/PB
IC160 %•
4.2Vp-p
H
C SYNC
REC/PB
IC160
4.0Vp-p
360Hz
DRUM FG
REC/PB
IC160
4.4Vp-p
DRUM PG
REC/PB
30Hz
IC160
2.9Vp-p
32kHz (OUT)
REC/PB
32.768kHz
(SEE PAGE 3-4)
(SEE PAGE 3-8)
(SEE PAGE 3-10)
(SEE PAGE 3-4)
(SEE PAGE 3-7)
(SEE PAGE 3-8)

Table of Contents

Related product manuals