EasyManua.ls Logo

Sony VPL-FX52 - Extension Board Connection

Sony VPL-FX52
128 pages
Print Icon
To Next Page IconTo Next Page
To Next Page IconTo Next Page
To Previous Page IconTo Previous Page
To Previous Page IconTo Previous Page
Loading...
1-11
VPL-FX52/FX52L
B board
C board
XC board
NR board
GB
board
CN502
(7P)
H board
XF32 board
QB board
XF702 board
X702 board
X702 board
X702 board
QA board
Lamp power
S board
X702 board
2
2
3
6
7
8
1
1
1
1
1
1
1
9 0
1
1
1
1
1
5
4
2
CN1100
(6P)
CN2200
(9P)
CN500
(6P)
CN3300
(32P)
CN3400
(32P)
Board to board
(CN5, CN3101)
Board to board
(CN1, CN1103)
Board to board
(CN1, CN1101)
Board to board
(CN6, CN1700)
Board to board
(CN10, CN401)
Board to board
(CN5, CN301)
Board to board
(CN6, CN1102)
Board to board
(CN10, CN3005)
CN3100
(50P)
CN3003
(7P)
CN3500
(32P)
CN501
(9P)
CN3002
(4P)
CN800
(11P)
CN801
(2P)
CN600
(2P)
CN3004
(11P)
CN3001
(3P)
S board
CN600
(2P)
XF32 board
X702 board
XC board
CN11 (32P)
CN12 (32P)
CN10
CN10
CN5,
CN10
CN5,
CN7
CN2,
CN7
CN2,
CN8
CN3,
CN6
CN1,
CN8
CN3,
CN6
CN1,
CN9
CN4,
CN9
CN4,
CN5
CN5000
(2P)
CN5100
(50P)
CN3100
(50P)
CN3000
(2P)
CN3003
(7P)
CN5003
(7P)
CN3002
(4P)
CN3004
(11P)
CN3001
(3P)
CN5002
(4P)
CN5004
(11P)
CN5001
(3P)
CN4
(24P)
CN9
(24P)
CN7
(24P)
CN2
(24P)
CN700
(3P)
CN3000
(2P)
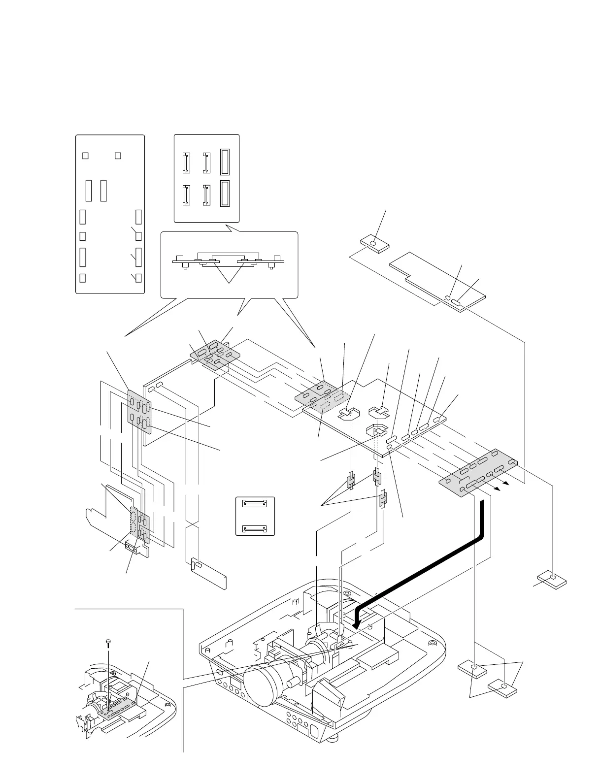
Fix the XC board
with the screw.
XC board
1-2-16. Extension Board Connection
n
The numbers of the extension cables and those of the figure correspond each other. (Refer to 1-2-15)
Be sure to turn on the switch on the S board.

Other manuals for Sony VPL-FX52

Related product manuals