EasyManua.ls Logo

Sorensen DLM16-185E - Calibration Procedures

Default Icon
66 pages
Print Icon
To Next Page IconTo Next Page
To Next Page IconTo Next Page
To Previous Page IconTo Previous Page
To Previous Page IconTo Previous Page
Loading...
Sorensen DLM-E Series Maintenance and Troubleshooting
Operation Manual
53
5.3 Calibration
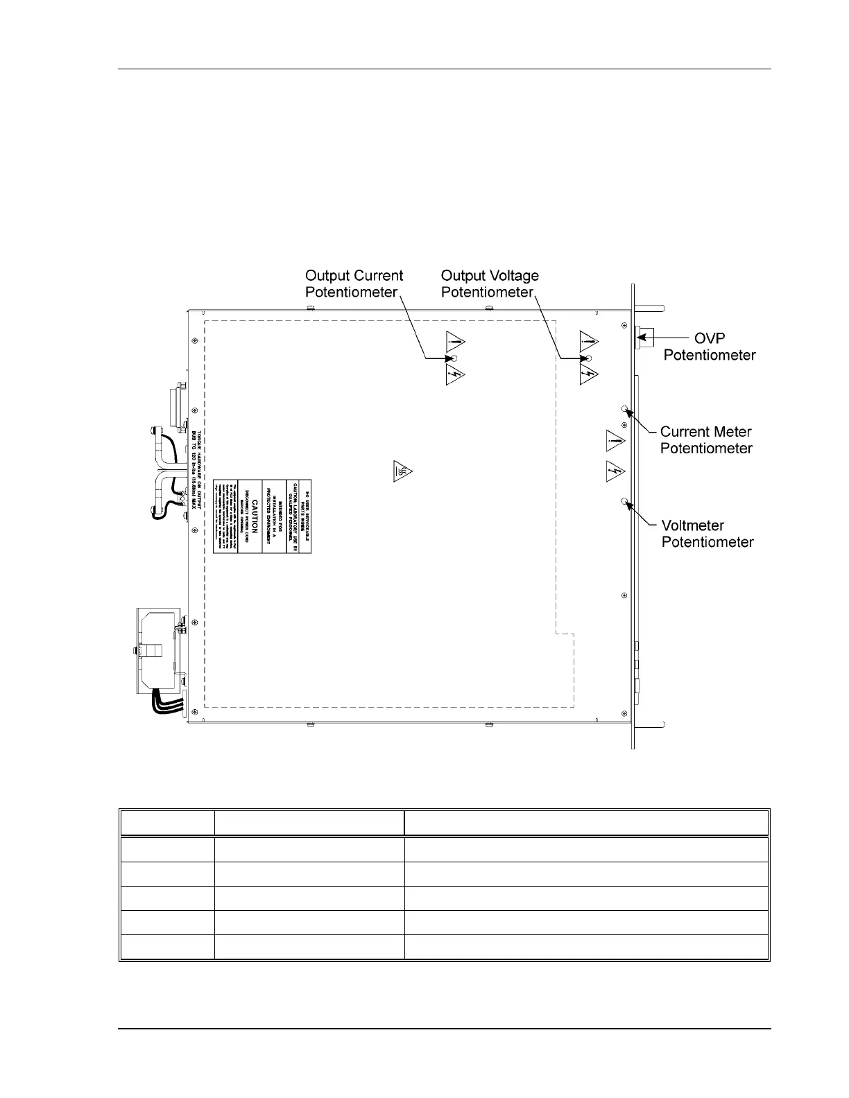
Calibration of the output voltage, current, or OVP is accomplished using multiturn trimpots.
Table 5–2 gives the location, function, and effect of each potentiometer.
Calibration is performed at the factory during testing. Recalibration should be performed
annually and following major repairs. With the cover in place, calibration should be done
through access holes in the cover or front panel. See Figure 5–1.
Figure 5–1. Potentiometer Locations
Location Function Adjustment Procedure
Top Cover Output Voltage Clockwise rotation increases output voltage setting
Top Cover Output Current Clockwise rotation increases output current setting
Top Cover Front Panel Voltmeter Clockwise rotation increases voltage meter reading
Top Cover Front Panel Current Meter Clockwise rotation increases current meter reading
Front Panel OVP Clockwise rotation increases OVP shutdown setting
Table 5–2. Potentiometer Adjustment Procedures

Table of Contents

Related product manuals