EasyManua.ls Logo

Thermo King MD-MT - Multi-Temp Relay Board; Figure 27: Multi-Temp Relay Board

Thermo King MD-MT
192 pages
Print Icon
To Next Page IconTo Next Page
To Next Page IconTo Next Page
To Previous Page IconTo Previous Page
To Previous Page IconTo Previous Page
Loading...
Electrical Maintenance
73
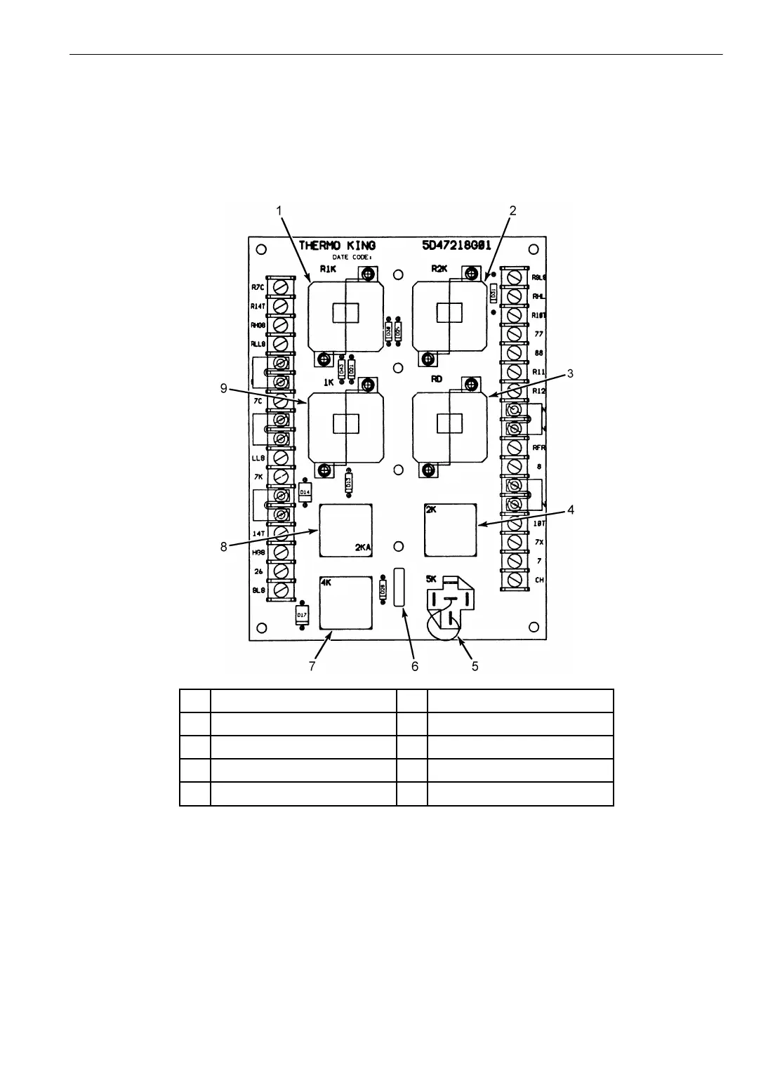
Multi-Temp Relay Board
The multi-temp relay board is located inside the
control box. The thermostat relays and the
associated control relays are located on the
multi-temp relay board. The component locations
are shown in the following illustration.
AEA623
1. Zone 2 Heat/Cool Relay (R1K) 6. 7X-CH Fuse
2. Zone 2 Speed Relay (R2K) 7. Hot Gas Lockout Relay (4K)
3. Zone 2 Defrost Relay (RDR) 8. Suction Solenoid Relay (2KA)
4. Zone 1 Speed Relay (2K) 9. Zone 1 Heat/Cool Relay (1K)
5. Jumper
Figure 27: Multi-Temp Relay Board

Table of Contents

Related product manuals