EasyManua.ls Logo

Thermo Scientific DensityPRO+ - Page 76

Thermo Scientific DensityPRO+
107 pages
Print Icon
To Next Page IconTo Next Page
To Next Page IconTo Next Page
To Previous Page IconTo Previous Page
To Previous Page IconTo Previous Page
Loading...
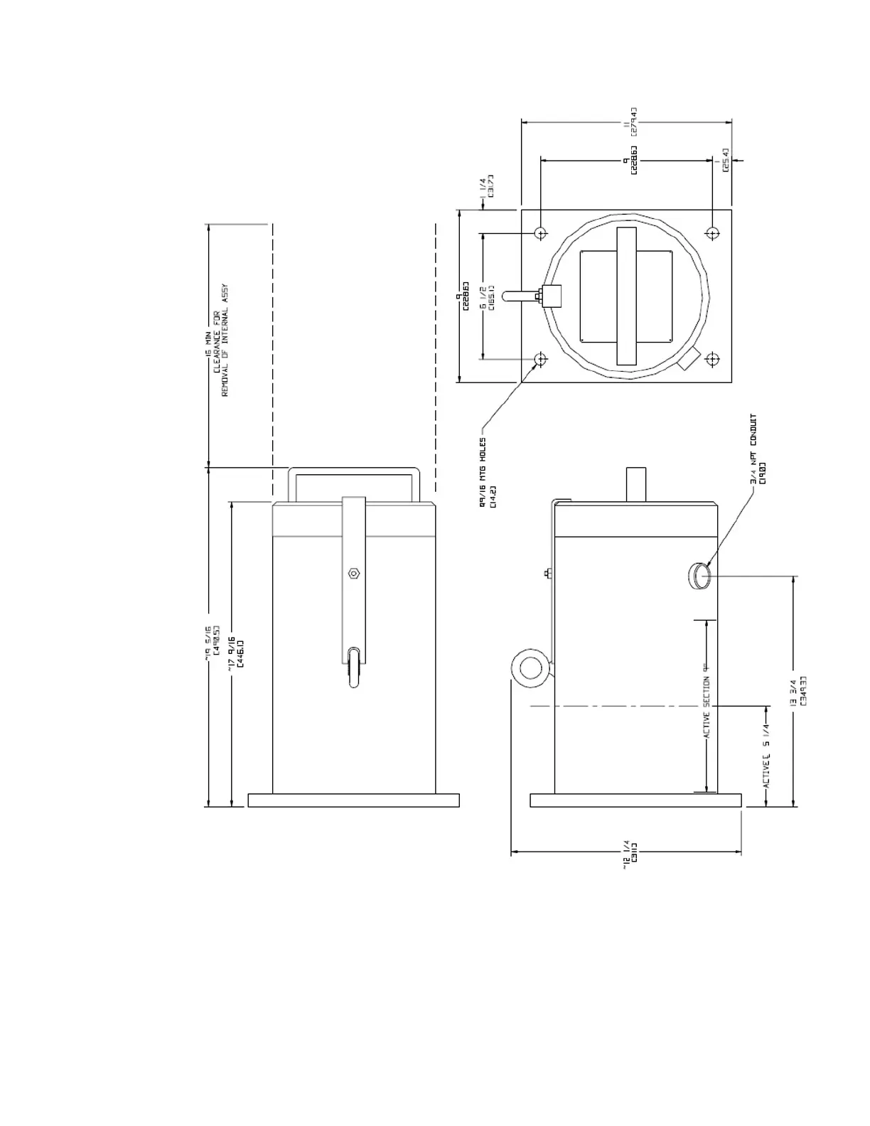
Drawings
C-22 DensityPRO+ Installation Guide Thermo Fisher Scientific
Figure C–19. 866777: Mounting dimensions, 9702 ion chamber detector, explosion proof housing
(sheet 1 of 1)

Related product manuals