EasyManua.ls Logo

TPC TIREBOSS - System Overview

TPC TIREBOSS
70 pages
Print Icon
To Next Page IconTo Next Page
To Next Page IconTo Next Page
To Previous Page IconTo Previous Page
To Previous Page IconTo Previous Page
Loading...
1-1
TIREBOSS
TM
Tire Pressure Control
SERVICE MANUAL
f:tec\manuals\Service\SERVICEv5.indd - V6-0615
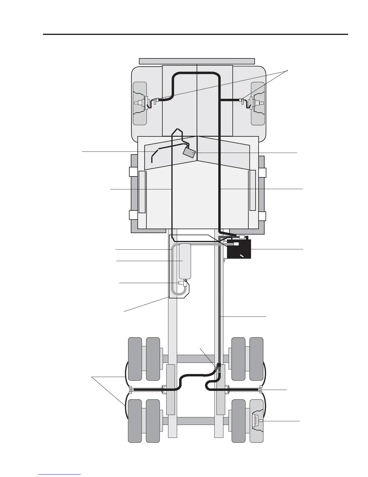
SYSTEM OVERVIEW
Valve Box
Drive Axle Main Line
Y-Fitting
TRUCK
CAB
Operator
Control Unit
Drive Axle
Hose Hangers
Truck Wet Tank
Pressure
Protection Valve
Drive Axle
Hoses
Brake Pressure
Protection Switch
Air Line
TPCS
Air Supply Line
Operator
Control Cable
Speed/Ignition
Cable
Wheel End
Manifold Assembly
Steer Axle
Main Line
(optional)
Steer Shut-off Valves
(located on frame)

Related product manuals