EasyManua.ls Logo

Trane GEHE - Wiring Diagrams; Isolation Valve Wiring Connections; Basic 24 V Wiring Diagrams

Trane GEHE
118 pages
Print Icon
To Next Page IconTo Next Page
To Next Page IconTo Next Page
To Previous Page IconTo Previous Page
To Previous Page IconTo Previous Page
Loading...
104 WSHP-SVX01L-EN
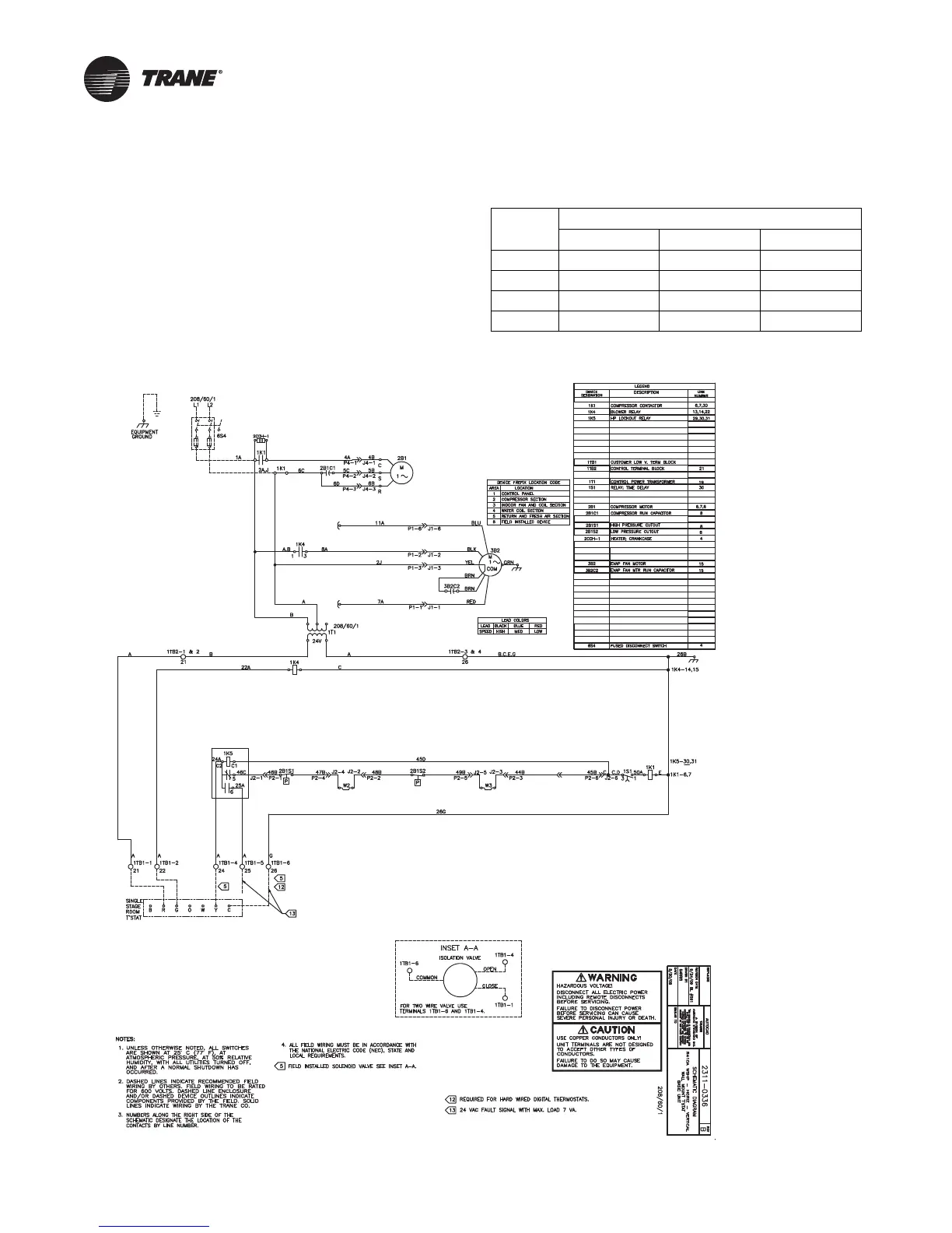
Wiring Diagrams
This section contains wiring diagrams (Figure 80, p. 104
Figure 91, p. 115) and isolation valve wiring connections
(Table 61, p. 104).
Table 61. Isolation valve wiring
Control
type
3-wire Honeywell isolation valve connections
Blue Brown Black
Basic 24V 1TB1-6 1TB1-1 1TB1-4
Deluxe 24V 1TB1-6 1TB1-1 1TB1-4
ZN510 1TB1-11 1TB2-3 1TB1-12
ZN524 1TB1-18 1TB2-3 1TB1-16
Figure 80. Basic-208V - 60 Hz - 1 ph
(a)
(a) Wiring diagrams provided in the catalog are generic. A unit specific As Built wiring diagram is located on the unit control panel.

Table of Contents

Related product manuals