EasyManua.ls Logo

Trane GEHE - GEV 6-10 T 60 Hz; 6 and 7,5 T 50 Hz - Back Return;Top Supply

Trane GEHE
118 pages
Print Icon
To Next Page IconTo Next Page
To Next Page IconTo Next Page
To Previous Page IconTo Previous Page
To Previous Page IconTo Previous Page
Loading...
Unit Dimensions and Weights
34 WSHP-SVX01L-EN
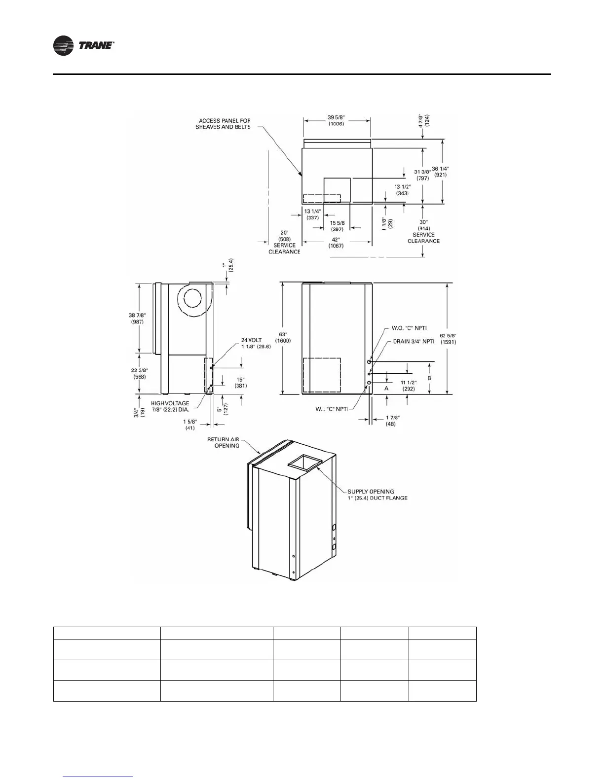
Figure 27. GEV 6–10 tons (072-120) 60 Hz; 6 and 7½ ton (072 and 090) 50 Hz—back return/top supply
(a)
(a)NEC requires that the GEV072-300 front return must be a non-ducted return.
Table 20. GEV 6–10 tons (072-120) 60 Hz; 6 and 7½ ton (072 and 090) 50 Hz—back return/top supply
Unit (60 Hz) Unit (50 Hz) A B C
6 ton
6-5/8 in.
(168 mm)
18-3/8 in.
(467 mm)
1-1/4 in.
(32 mm)
7½ ton 6 ton
6-5/8 in.
(168 mm)
18-3/8 in.
(403 mm)
1-1/4 in.
(32 mm)
10 ton 7½ ton
6-1/2 in.
(165 mm)
18-1/2 in.
(470 mm)
1-1/2 in.
(38 mm)

Table of Contents

Related product manuals