EasyManua.ls Logo

Trane GEHE - Unit Weights Summary

Trane GEHE
118 pages
Print Icon
To Next Page IconTo Next Page
To Next Page IconTo Next Page
To Previous Page IconTo Previous Page
To Previous Page IconTo Previous Page
Loading...
Unit Dimensions and Weights
50 WSHP-SVX01L-EN
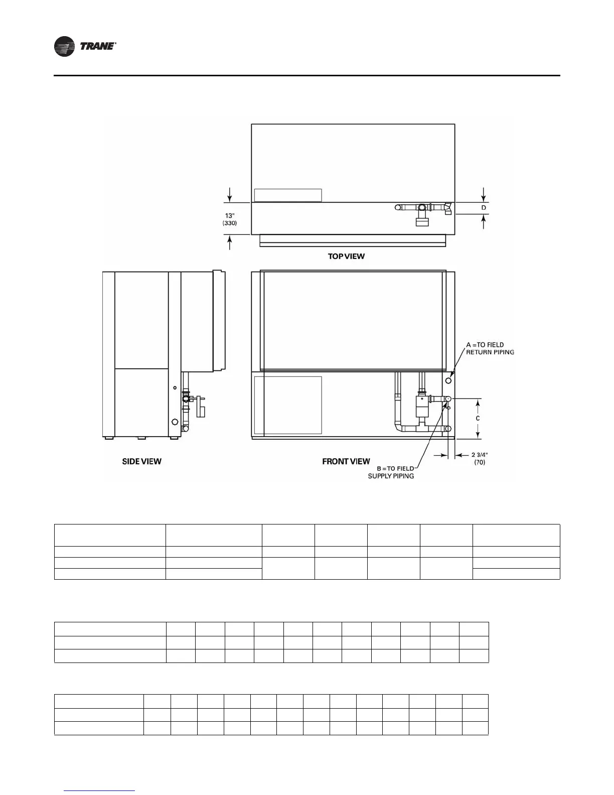
Figure 43. GEV 12½-25 tons (150-300), waterside economizer
(a)
(a)Entering water is on the AB port.
Table 29. GEV 12½-25 tons (150-300), waterside economizer
Unit (60 Hz) Unit (50 Hz)
A
NPTI
B
I.D. C D Operating Weight
12-1/2, 15 ton 10, 12-1/2 ton 1-1/2 (38) 1-5/8 (41) 15-7/8 (403) 4-3/8 (111) 275 lb (125 kg)
20 ton 15 ton
2 (51) 2-1/8 (54) 16-1/4 (413) 4-7/8 (124)
310 lb (141 kg)
25 ton 20 ton 395 lb (179)
Note: All dimensions are in inches followed by millimeters in parenthesis.
Table 30. Unit weights GEH006-060 (60 Hz)
GEH 006 009 012 015 018 024 030 036 042 048 060
Net Weight (lbs.) 165 165 173 173 248 253 253 288 288 398 398
Ship Weight (lbs.) 195 195 203 203 268 285 285 318 318 428 428
Table 31. Unit weights GEV006-060 (60 Hz)
Model GEV 006 009 012 015 018 024 030 032 036 040 042 048 060
Net Weight (lbs.) 165 165 173 173 248 253 253 253 288 253 288 348 349
Ship Weight (lbs.) 195 195 203 203 268 285 285 285 308 285 308 396 396

Table of Contents

Related product manuals