EasyManua.ls Logo

Trane GEHE - GEH 6-10 T 60 Hz, L Return;Geh 6-7,5 T50 Hz, L Return, Waterside Econom

Trane GEHE
118 pages
Print Icon
To Next Page IconTo Next Page
To Next Page IconTo Next Page
To Previous Page IconTo Previous Page
To Previous Page IconTo Previous Page
Loading...
Unit Dimensions and Weights
46 WSHP-SVX01L-EN
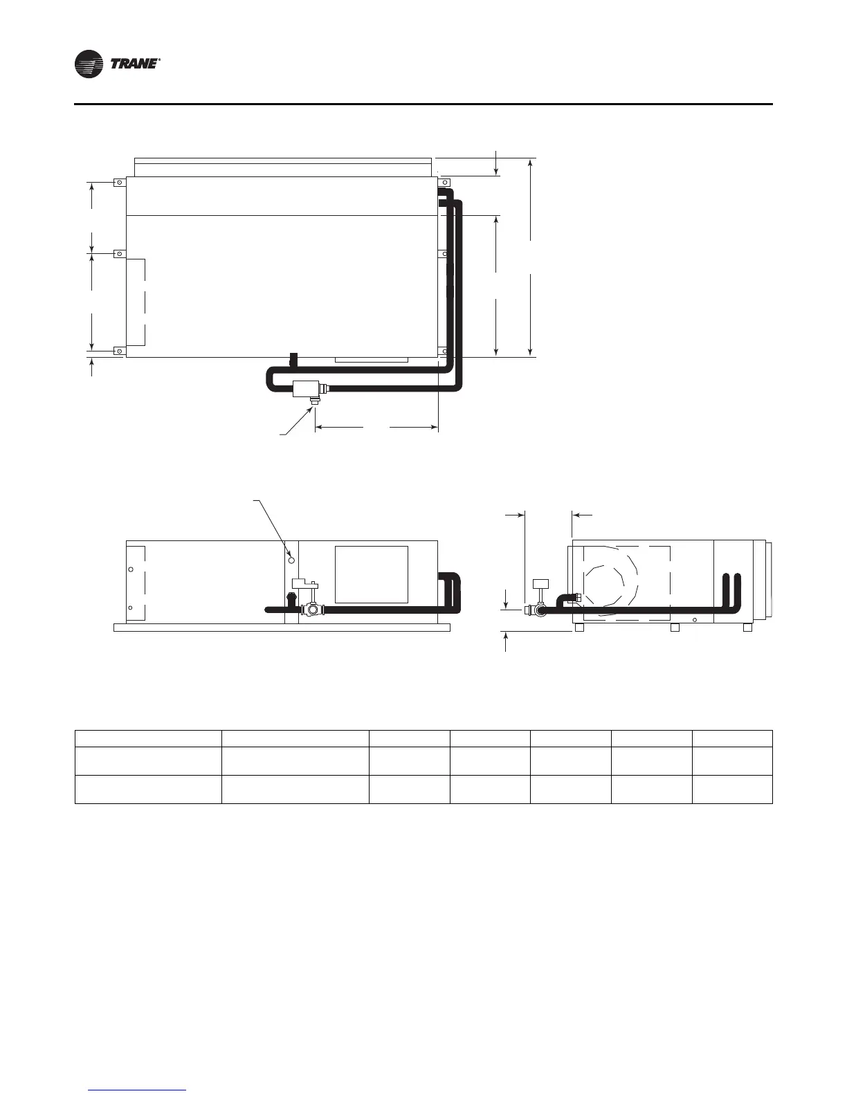
Figure 39. GEH 6-10 tons (072-120) 60 Hz, left return; GEH 6-7½ tons (072-090) 50 Hz, left return, waterside economizer
(a)(b)
(a)Entering water is on the AB port.
(b)Field piping required on waterside economizer.
C
9 7/8"
(251)
36"
(914)
50 5/8"
(1286)
"B" OD COPPER TO
FIELD SUPPLY PIPING
18 1/2"
(470)
24 3/4"
(629)
1 1/4"
(32)
D
E
"A" NPTI FOR
FIELD RETURN PIPING
Table 27. GEH 6-10 tons (072-120) 60 Hz, left return; GEH 6-7½ tons (072-090) 50 Hz, left return, waterside economizer
GEH (60 Hz) GEH (50 Hz) A B C D E
072-090 072
1-1/4
(32)
1-3/8
(35)
31
(787)
9-7/8
(251)
3-7/8
(98)
120 090
1-1/2
(38)
1-5/8
(41)
30-3/4
(781)
12-1/2
(318)
4-1/2
(114)
Note: All dimensions are in inches followed by millimeters in parenthesis.

Table of Contents

Related product manuals