EasyManua.ls Logo

Tuthill PD Plus - Page 61

Tuthill PD Plus
70 pages
Print Icon
To Next Page IconTo Next Page
To Next Page IconTo Next Page
To Previous Page IconTo Previous Page
To Previous Page IconTo Previous Page
Loading...
Manual 2007 Rev B p/n 2007
55
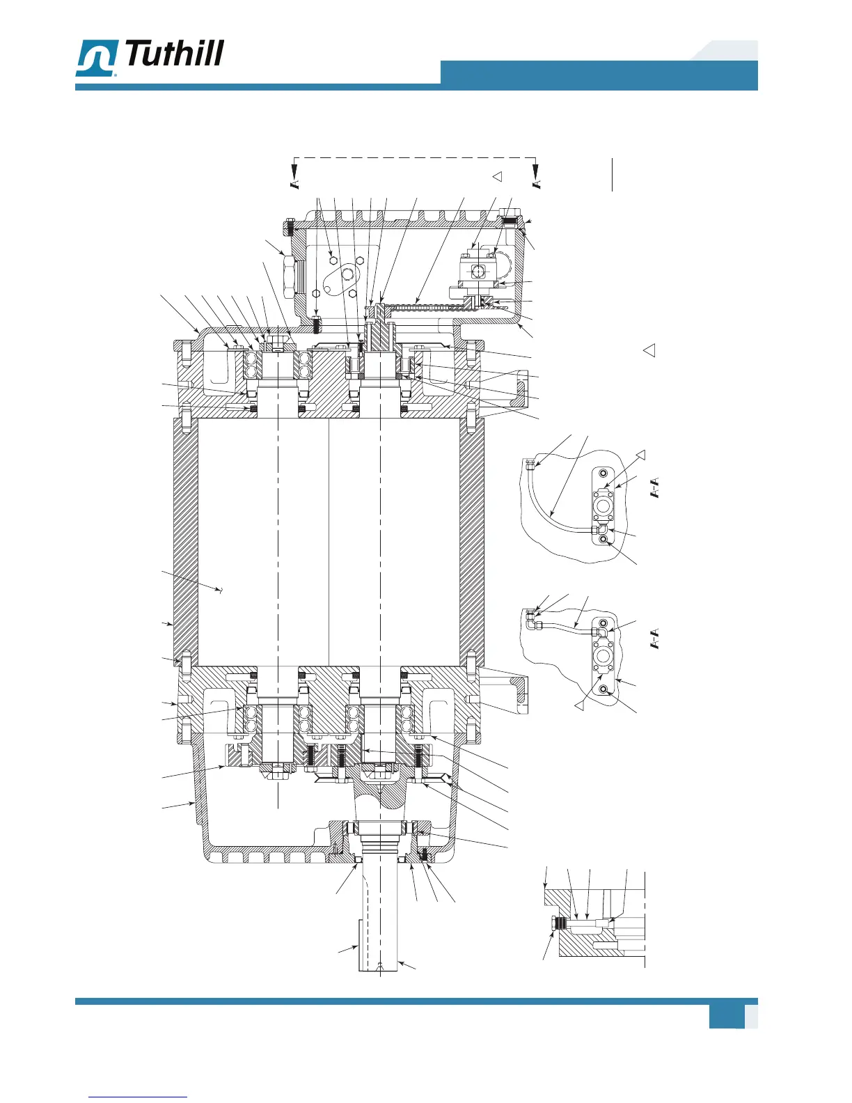
Assembly Drawings
Model 7000 – Internal Lube Lip/Lab Seals – Cutaway View
ON DRIVE END COVER
92
93
6650 24395
336
ON END PLATES
349
351
354
4
REF
PACK WITH
GREASE
45
91
23
13
862294 31
337
452
125212
226
2
212163
226
163
188
369
294
57 10B67
122
306
45820
2
125
369
165
322
REF
125 325
136
446
144
450B
450A
2
337
449
451
69
110
14
350
68
5929
25
10A
30
15
7
14
1251
329
302
ORIFICE
ASSEMBLY
4 PLACES ON EACH END PL
ATE
1 PLACE ON DRIVE END COVER
VIEW
(COVER REMOVED)
86 SERIES
VIEW
(COVER REMOVED)
19 SERIES
NOTES:
USE SEALANT BETWEEN END COVERS, END PLATES,
HOUSING, PUMP HOUSING AND OIL FILTER ADAPTER
2
INSTALL ITEM 144 OIL PUMP
WITH SUCTION
OF PUMP
(MARKED WITH “S”) ON SIDE OF BLOWER
OPPOSITE ITEM 187 OIL DRAIN LINE.
7013 SHOWN

Table of Contents

Related product manuals