EasyManua.ls Logo

Tuthill PD Plus - Page 62

Tuthill PD Plus
70 pages
Print Icon
To Next Page IconTo Next Page
To Next Page IconTo Next Page
To Previous Page IconTo Previous Page
To Previous Page IconTo Previous Page
Loading...
Manual 2007 Rev B p/n 2007
56
Assembly Drawings
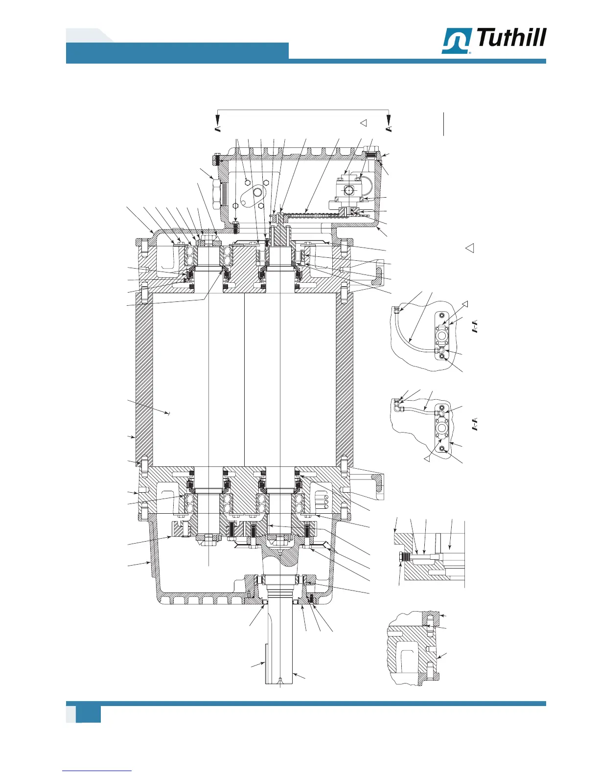
Model 7000 – Single Envelope Gastight – Cutaway View
92
93
50 66 395 24
336
ON END PLATES
349
351
14 51
354
REF4
PACK WITH
GREASE
45
91
23
13
862294 31
452
337
125
226
212
2
212163 163
226
369
188
294
57 67
10B
458
306
20
122
2
125
165
369
322
325125
REF
136
446
450B
144
450A
2
300
74 5475
337
449
69
451
14
110
350
68
29 59
25
10A
302
329
30
15
7
4 176 3
ON DRIVE
END COVER
OPTIONAL
O-RING
ARRANGEMENT
FOR UNITS WITH
O-RING SEALING
TYP
FOR BOTH ENDS
ORIFICE ASSEMBLY
4 PLACES ON EACH END PLATE
1 PLACE ON DRIVE END COVER
VIEW
(COVER REMOVED)
82 SERIES
VIEW
(COVER REMOVED)
82 SERIES
NOTES:
USE SEALANT BETWEEN END COVERS, END PLATES,
HOUSING, PUMP HOUSING AND OIL FILTER ADAPTER
2
INSTALL ITEM 144 OIL PUMP WITH SUCTION
OF PUMP (MARKED WITH “S”) ON SIDE OF BLOWER
OPPOSITE ITEM 187 OIL DRAIN LINE.
7013 SHOWN

Table of Contents

Related product manuals