EasyManua.ls Logo

TYM T494C - Page 111

TYM T494C
191 pages
Print Icon
To Next Page IconTo Next Page
To Next Page IconTo Next Page
To Previous Page IconTo Previous Page
To Previous Page IconTo Previous Page
Loading...
5 - 13
MAINTENANCE AND SERVICE
43
5
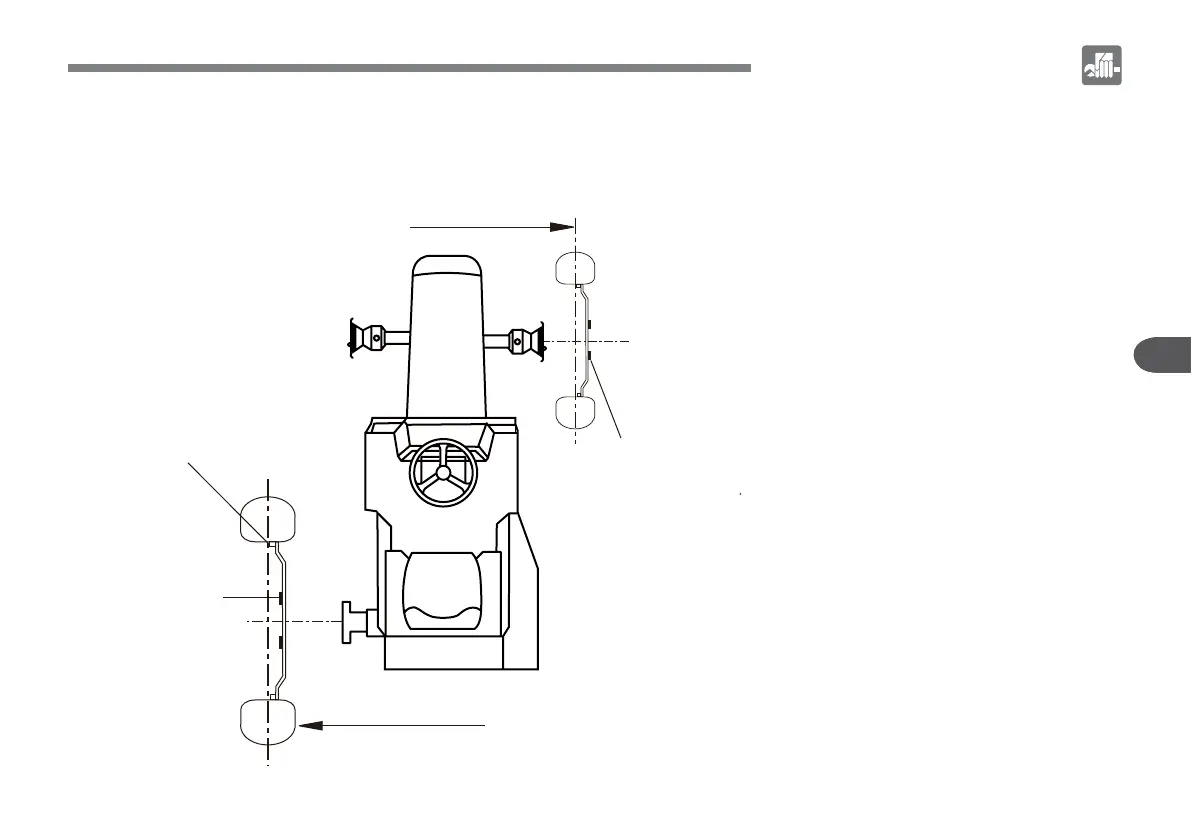
STANDARD
T4HO502A
Tightening torque
1,600~1,800kg cm
1,310
Tightening torque
2,000~2,300kg cm
Tightening torque
1,600~1,800kg cm
1,270

Table of Contents

Related product manuals