EasyManua.ls Logo

Valor Fires 942 - Page 28

Valor Fires 942
60 pages
Print Icon
To Next Page IconTo Next Page
To Next Page IconTo Next Page
To Previous Page IconTo Previous Page
To Previous Page IconTo Previous Page
Loading...
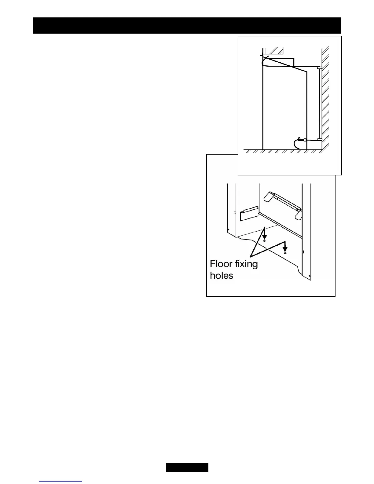
6. Thread the cables through the eyebolts. Return the
cables through the holes near the bottom of the hotbox
back panel (See figure 20).
7. Place the hotbox fully back into the fireplace opening
so that it is sealed against the fireplace front surround.
8. Drill a hole into the fireplace floor through each of the
two holes in the base of the hotbox using a suitably
sized masonry drill for the fibre plugs supplied (See
figure 21).
9. Insert a fibre plug into each hole. Use the fibre plugs
supplied with this appliance - Never use plastic plugs
instead of the fibre plugs supplied. Fit a woodscrew in
each plug and tighten.
Always screw the base into position before
applying tension to the cables. This will
ensure a tight seal between the top of the
hotbox and wall.
10. Fit a cable retainer over the bottom end of
each cable.
Page 28
© Baxi Heating U.K. Limited 2009.
INSTALLER GUIDE
Figure 21. Floor fixing
Figure 20. Cable route

Table of Contents

Related product manuals