EasyManua.ls Logo

Ventis HE250 - Page 45

Ventis HE250
91 pages
Print Icon
To Next Page IconTo Next Page
To Next Page IconTo Next Page
To Previous Page IconTo Previous Page
To Previous Page IconTo Previous Page
Loading...
HE250 - Installation and Operation Manual 45
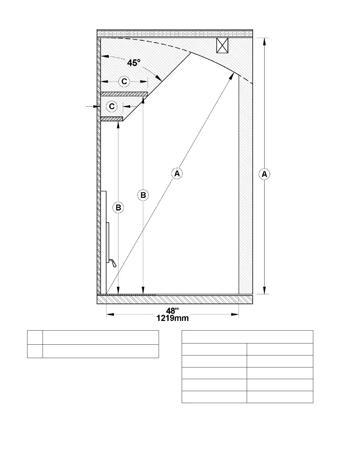
CLEARANCES
A 80" (2032 mm)
SHELF POSITIONING
B C
58" (1473 mm) 6" (152 mm)
60" (1524 mm) 8" (203 mm)
62" (1575 mm) 10" (254 mm)
64" (1626 mm) 12" (305 mm)

Table of Contents

Related product manuals