EasyManua.ls Logo

Viessmann VITOCAL 350 - Specification (cont.); Dimensions

Viessmann VITOCAL 350
26 pages
Print Icon
To Next Page IconTo Next Page
To Next Page IconTo Next Page
To Previous Page IconTo Previous Page
To Previous Page IconTo Previous Page
Loading...
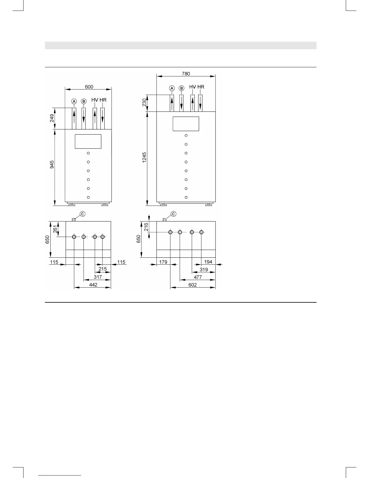
Dimensions
Left illustration - Vitocal 300/350, single stage; right illustration: Vitocal 300, two-stage
A Primary OUT (brine)
B Primary IN (brine)
C Cable entries
HR Heating return
HV Heating flow
5822 119-7 GB
10 VIESMANN VITOCAL 300/350
Specification (cont.)

Table of Contents

Related product manuals