EasyManua.ls Logo

Viessmann Vitosol100 - Overall System Optimisation

Viessmann Vitosol100
104 pages
Print Icon
To Next Page IconTo Next Page
To Next Page IconTo Next Page
To Previous Page IconTo Previous Page
To Previous Page IconTo Previous Page
Loading...
1.3Overall system optimisation
8
VITOSOL
1.3 Overall system optimisation
A high−quality solar panel cannot by itself
guarantee the optimum operation of a
solar installation. This depends more on
the complete system solution as a whole.
Viessmann supplies all the components
required for a solar heating system:
H a control unit that is tailored to the
individual solar heating system,
H a DHW cylinder incorporating a solar
heat exchanger low inside the cylinder,
H fast−responding controls designed to
help you gain maximum yield from the
solar heating system.
Correctly sized solar heating systems with
well−matched system components can
cover 50 to 60
% of the annual energy
demand for DHW heating in detached and
two−family houses.
We will be pleased to assist you with the
design of solar heating systems (see also
the Viessmann ESOP calculation program
in chapter 5).
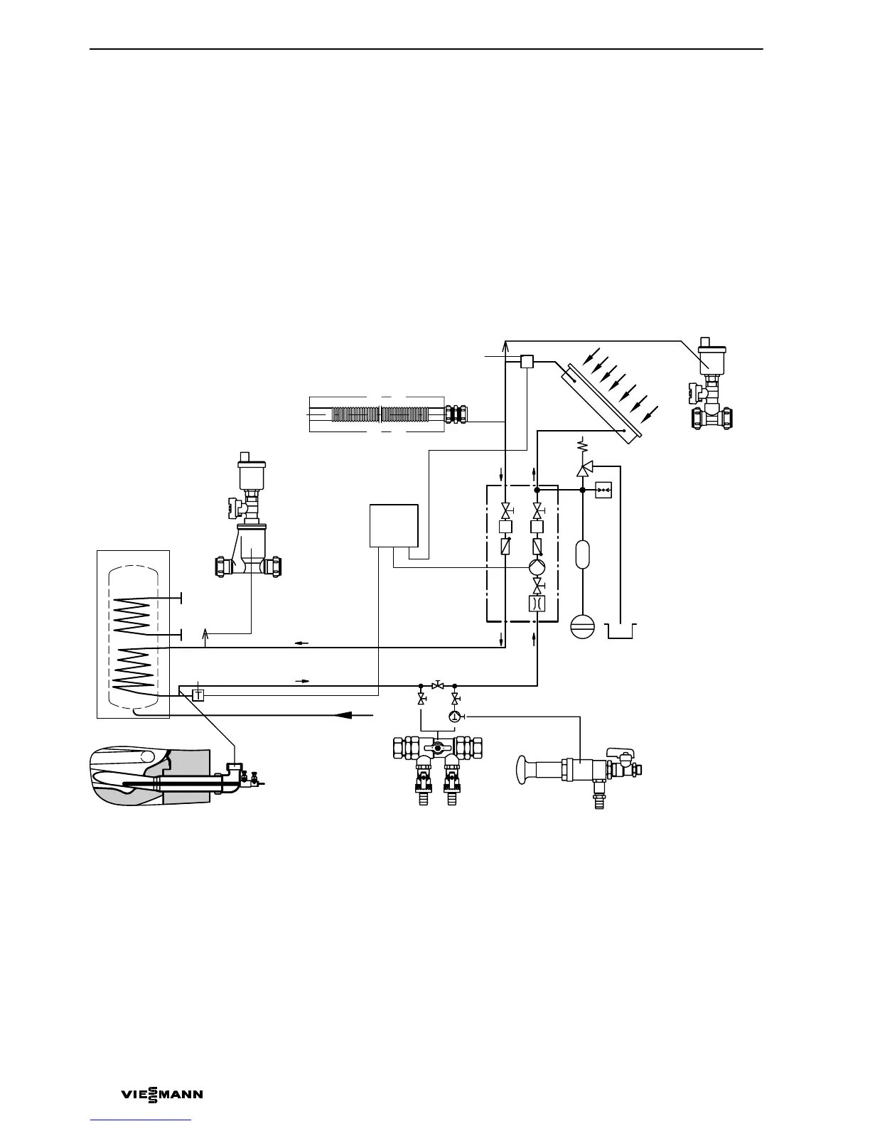
The elements of a solar heating system
are shown in the diagram.
A Solar panel
B SolarDivicon (pumping station)
C Collecting tank
D Pre−cooling vessel
E Expansion vessel
F Manual solar filling pump
G Fill valve
H Threaded elbow
K Dual mode DHW cylinder
L Cylinder temperature sensor
M Air separator
*1
N Solar control unit
O Flexible connection pipe
P Collector temperature sensor
R Air vent valve
*2
RL Return
VL Flow
Note
Perfect ventilation of the collector circuit is an absolute requirement for trouble−free and efficient operation of the solar heating
system.
Install the air vent valve into the collector flow upstream of components, such as the pump and heat exchanger (looking in the flow
direction) to enable air to ventilate before it reaches these components, which are difficult to vent.
*1
Mount air separator at an accessible point in flow pipe.
*2
Install at least one air vent valve (quick−acting air vent valve or a manual vent valve, see page58) at the highest point of the system.
5822135 GB
P
O
N
R
E C
FG
H
K
M
VL RL
T
T
T
A
B
D
L

Table of Contents

Related product manuals