EasyManua.ls Logo

Viessmann Vitosol100 - H Dual Mode DHW Heating with DHW Cylinders Vitocell B 100 or Vitocell B 300, with Vitosolic 200

Viessmann Vitosol100
104 pages
Print Icon
To Next Page IconTo Next Page
To Next Page IconTo Next Page
To Previous Page IconTo Previous Page
To Previous Page IconTo Previous Page
Loading...
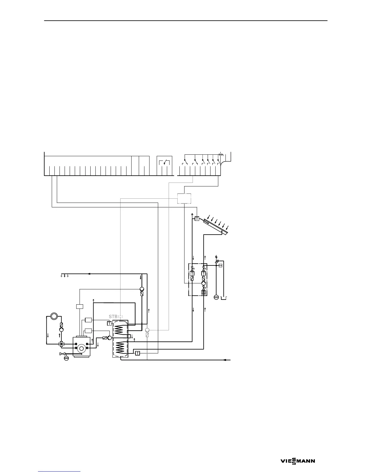
4.1System design1  with Vitosolic 200
63
VITOSOL
Dual mode DHW heating with VitocellB100 or VitocellB300 DHW cylinder, with Vitosolic200
DHW heating without solar energy
The upper indirect coil of the DHW
cylinder is heated by a boiler. The cylinder
thermostat with cylinder temperature
sensor 6 of the boiler control unit
switches cylinder loading pump 7.
DHW loading with solar energy
Solar circuit pump 4 is switched ON and
the DHW cylinder is loaded, if a
temperature differential higher than
start−up temperature differential T
on
is
measured between collector temperature
sensor 2 and cylinder temperature
sensor 3.
Pump 4 is switched OFF when:
H the actual temperature falls below
shutdown temperature differential
T
off
H the electronic temperature limit (safety
shutdown at 90 ºC) set at the control
unit or that set at the high limit safety
cut−out (if required) is exceeded.
The additional function requirements (see
page 60) are met by circulation pump 8.
Installation diagram
A Solar panel
B DHW circulation pump
C DHW circulation output of the boiler
control unit or on−site time switch
D Oil and gas fired boilers
E DHW cylinder
F Junction box (on site)
5822135 GB
2
28
5
21
A
DE
4
5
6
VL RL
3
B
8
KW
C
WW
7
F
GND
S1
S2
S3
S4
S5
S6
S7
S8
S9
S10
S11
S12
CS10
−−−−
Imp1
Imp2
145
145
R4
LN
R6−A
R6−R
R5−R
R5−A
R3
R2
R1
R7−A
R7−M
R7−R
1

Table of Contents

Related product manuals