EasyManua.ls Logo

WarmFlow 70/90 - Kabin Pak Back Outlet; Slimline Kabin Pak

Default Icon
52 pages
Print Icon
To Next Page IconTo Next Page
To Next Page IconTo Next Page
To Previous Page IconTo Previous Page
To Previous Page IconTo Previous Page
Loading...
P
K
A
F
D
E
G
I
H
B
L
C
J
M
N
Q
J
B
H
C
== D
K
L
M
A
G
F
E x N
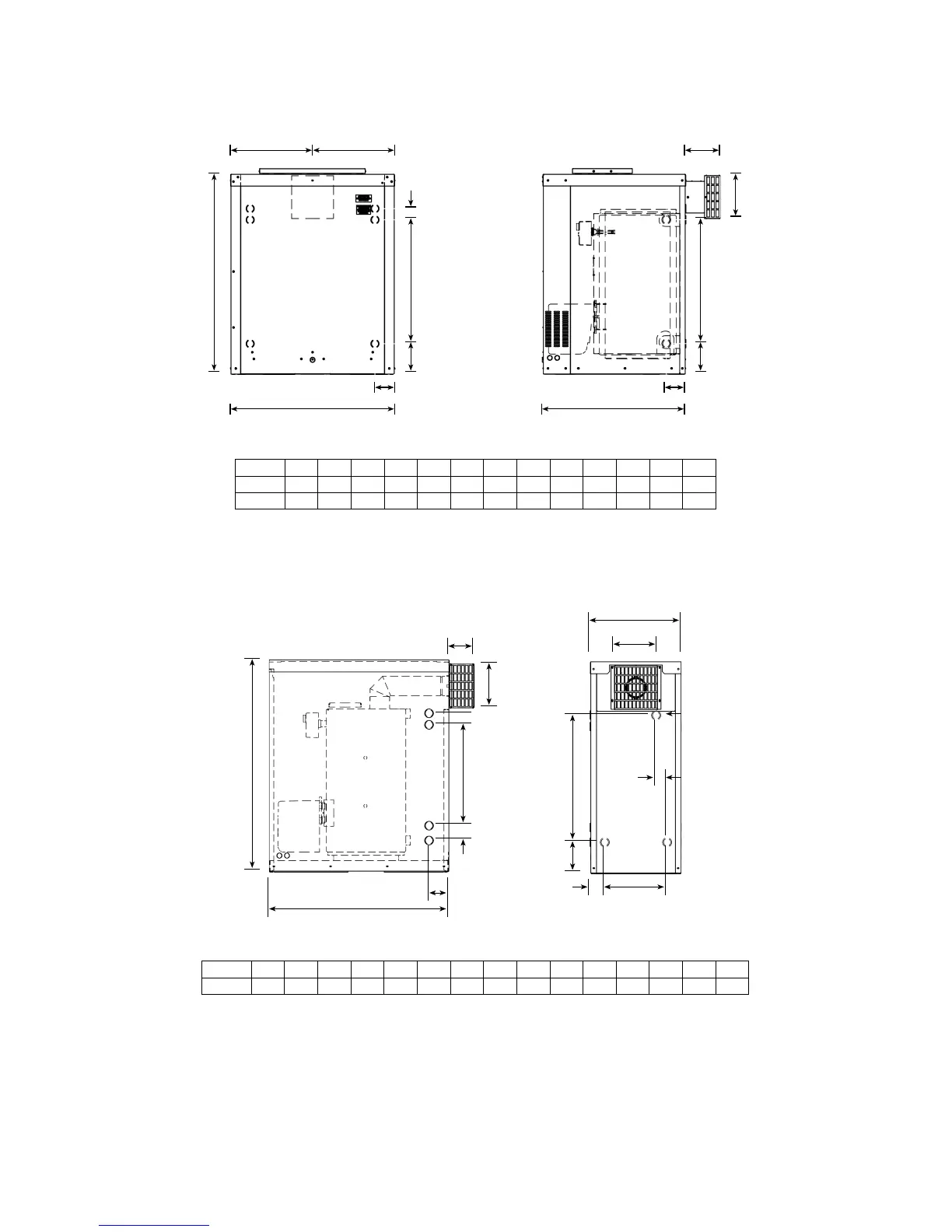
3.5 Kabin Pak Back Outlet
3.6 Slimline Kabin Pak
When installing a Slimline Kabin Pak against a wall allow 600mm to the front and rear
of the appliance for servicing.
MODEL
50-90
I
190
A
784
B
925
C
398
D
109
E
86
F
65
G
440
H
50
J
272
K
61
L
188
M
134
N
554
P
48
Page 9

Table of Contents

Other manuals for WarmFlow 70/90

Related product manuals