EasyManua.ls Logo

Westerbeke 6.5 MCG - Page 81

Westerbeke 6.5 MCG
90 pages
Print Icon
To Next Page IconTo Next Page
To Next Page IconTo Next Page
To Previous Page IconTo Previous Page
To Previous Page IconTo Previous Page
Loading...
cs.
m
. :J (I)
=~
~
0'
Ro
rrl
~i
~~~~
cr=-:
irih1
VI0-16GA
WHT
/SLK/GRI'I-1
&GA
ECU-J2-I
I
K2-
C87
l REO/VIO- 1
6GA
P
__
J_UN:.;;.:,.C....:_,1
•t-----:-------------~--=:~::
I
WHT/BlK/BRN-16GA
ECU.J2·23
VIO/WH~
OIL
PRESSURE SWITCH
(N/0
SWITCH)
W~T/6LK/BLU·I6GA
ECU.JZ-22
BATLGMD
~<
z'BLK
! !
BLK-IGGA
I.
~
I I
1'---l----.:!
K2-87
V
10-IGGA
I
BATLGND
BL
K-
18GA
I I
<"
-e:e·
'I
K~ll
I
G"ND
BATLGN_D
~..........-
ZJ
{--II
B.LK-1
SGA
TIMELRELA
Y
FUEL
SYSTEM
COMPONENTS
FUEL INJECTOR
•2
IINJ.2l
FUEL.
IN.JECTOR
•1
INJ.1
FUSE
.------}
AC
_.ATOR
==-
I '
BLK'
I
4GA
BATLGND
BLK/WHT
-12GA
WHT
I RED·
12GA
REO/WHT
·12GA
BATTERY
CHARGER
BATTERY
CHARGING
CIRCUIT
LEAD
WIRE
FROM
FUSE
HOLDER
30A
FUSE
lEAD
WIRE
FROM
FUSE
HOLDER
BATTdSTRI
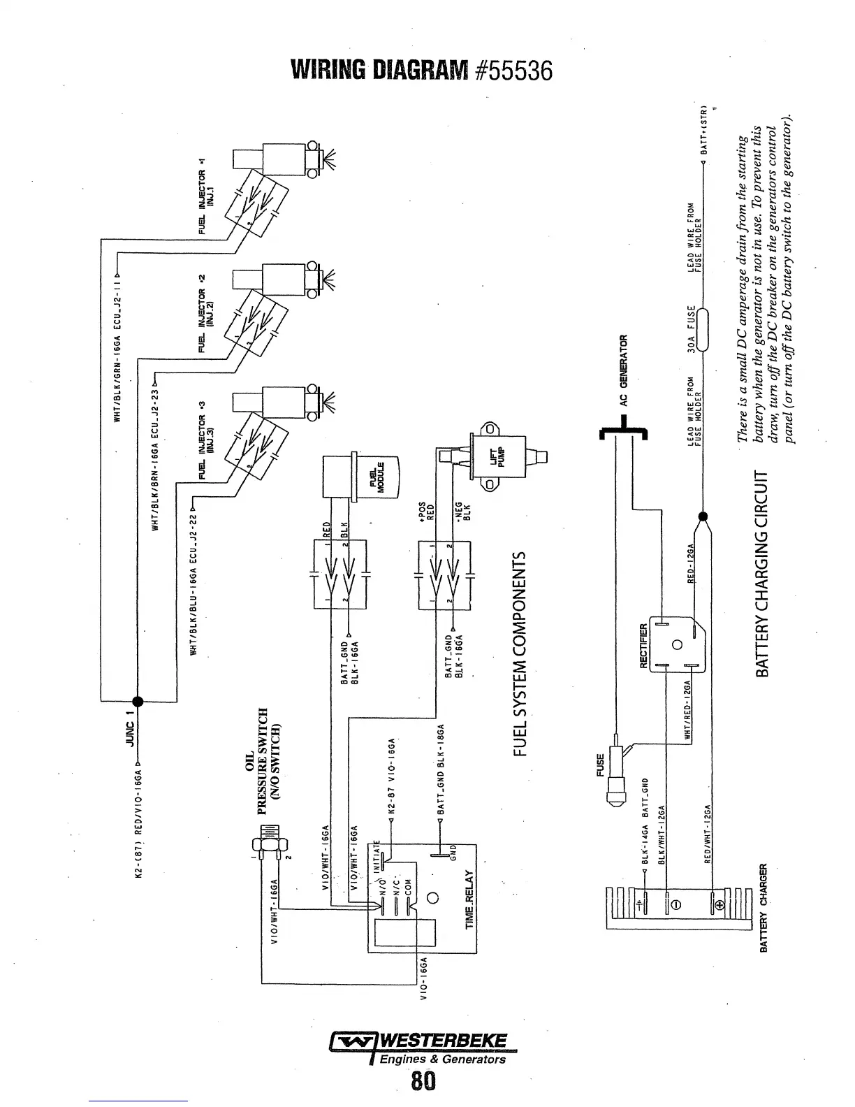
There
is
a small
DC
amperage drain from the starting
battery when the generator is not in use.
To
prevent this
draw,
tum
off
the
DC
breaker on the generators control
panel (or
tum
off
the
DC
battery switch
to
the generator).
==
-
=
-
z
G)
=
-
:r:a
..,
~
:g
:::J:f:::
CJ1
CJ1
CJ1
c..v
Q")

Table of Contents

Related product manuals