EasyManua.ls Logo

Wolf CGB-2-24 - Page 78

Wolf CGB-2-24
108 pages
Print Icon
To Next Page IconTo Next Page
To Next Page IconTo Next Page
To Previous Page IconTo Previous Page
To Previous Page IconTo Previous Page
Loading...
78 3064810_201804
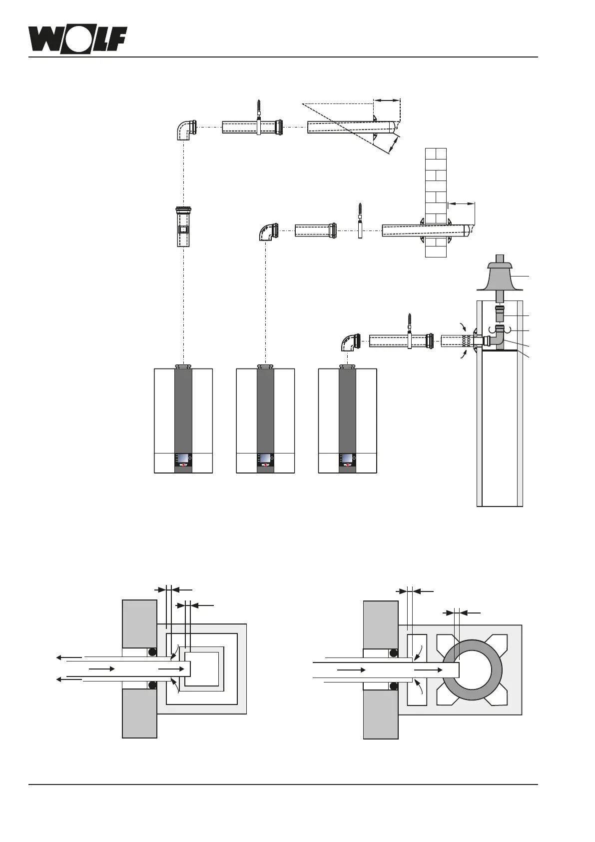
37.Technicalinformation,air/uegas
routing
Connectiontoamoisture-resistantuesystemandbalanceduechimney
Plewa System
C43x
Schiedel System
C43x
10
10
10
10
1 Gascondensingboiler
2 Balanceduepipe
withinspectionport
(250 mm long)
4 Balancedue
DN60/100
500 mm
1000 mm
2000 mm
9 Inspectionbend
10 Bend 87° DN60/100
11 Pipe collar
12 Support rail
13 Support bend 87°
DN60 to DN80
14 Spacer
15 PPuepipeDN80
500 mm
1000 mm
2000 mm
16 Ductcover
with UV resistant ter-
minal
17 Spacerbracket
18 Balancedue
horizontal, with wind
protector
19 Connectiontouegas
chimneyB33
Length 250 mm with air
apertures
17 18
18
11 11
11
1119
4
160
160
>400
2
10
4
4
17
17
9
9
12
13
14
16
15
1 1 1
Horizontalbalancedue/connectiontobalanceduechimney(examples)systemDN60/100
C13x C13x B33
Dormer

Other manuals for Wolf CGB-2-24

Related product manuals