EasyManua.ls Logo

Wolf CGB-75 - Page 53

Wolf CGB-75
64 pages
Print Icon
To Next Page IconTo Next Page
To Next Page IconTo Next Page
To Previous Page IconTo Previous Page
To Previous Page IconTo Previous Page
Loading...
533062555_201804
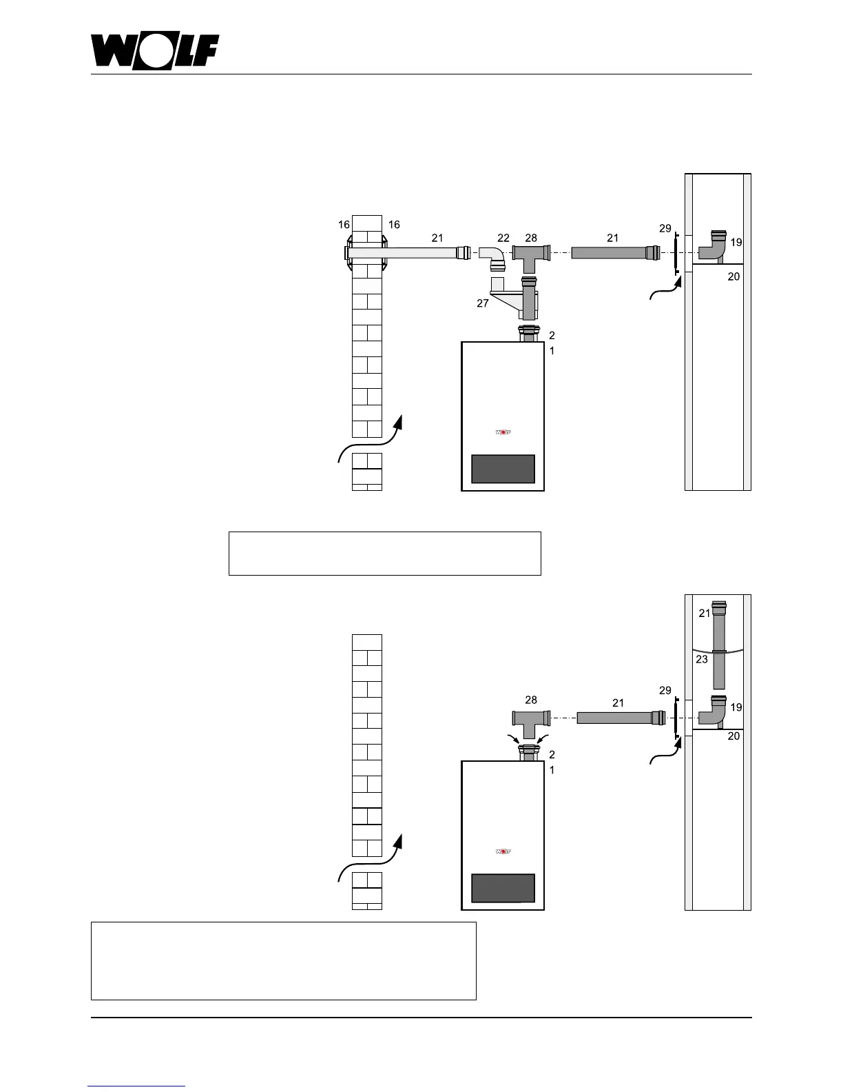
EccentricbalancedueC53,B23
Installthebalanceduedistributor110/110mmeccentrically
(26)foraseparatebalancedue.
WhenconnectingabalanceduecertiedaccordingtoBuilding
Regulations, observe the permit of the relevant body.
1 Gascondensingboiler
2 Gascondensingboilerconnections
DN110/160
19 SupportbendDN110
20 Supportrail
21 FluepipeDN110
500 mm
1000 mm
2000 mm
22 Bend 87° DN 110
23 Spacer
24 Ductcover
27 Balanceduedistributor
110/110 mm
28 Tee87°withinspectionaperture
DN 110
29 VentilationbezelØ110
Downstreamofthesupportbend(19),theuecanberouted
in DN 110 inside the duct.
Installthehorizontaluewithafallofap-
prox. 3° (6 cm/m) towards the boiler. Route
the horizontal air supply with a 3° slope
towardstheoutside–installtheairinletwith
a cowl; permissible wind pressure at the air
inlet 90 Pa. The appliance will not operate
with higher wind pressure.
Maintain the following clearance
between the internal shaft wall and
theue:
For round ducts: 3 cm
for square ducts: 2 cm
Secondary ventilation
B23
Secondary ventilation
C53
Ventilation air aperture for roomsealed operation
accordingtoTRGI150cm²or2x75cm².
Ventilation air in openueoperationinaccordancewithTRGI:
75kW 200cm²
100kW 250cm²
180kW 350cm²
200kW 450cm²
28.Technicalinformation

Other manuals for Wolf CGB-75

Related product manuals