EasyManua.ls Logo

Wright Flow Technologies Revolution R0150X - Double Seal - Flushed

Default Icon
70 pages
Print Icon
To Next Page IconTo Next Page
To Next Page IconTo Next Page
To Previous Page IconTo Previous Page
To Previous Page IconTo Previous Page
Loading...
Page 47
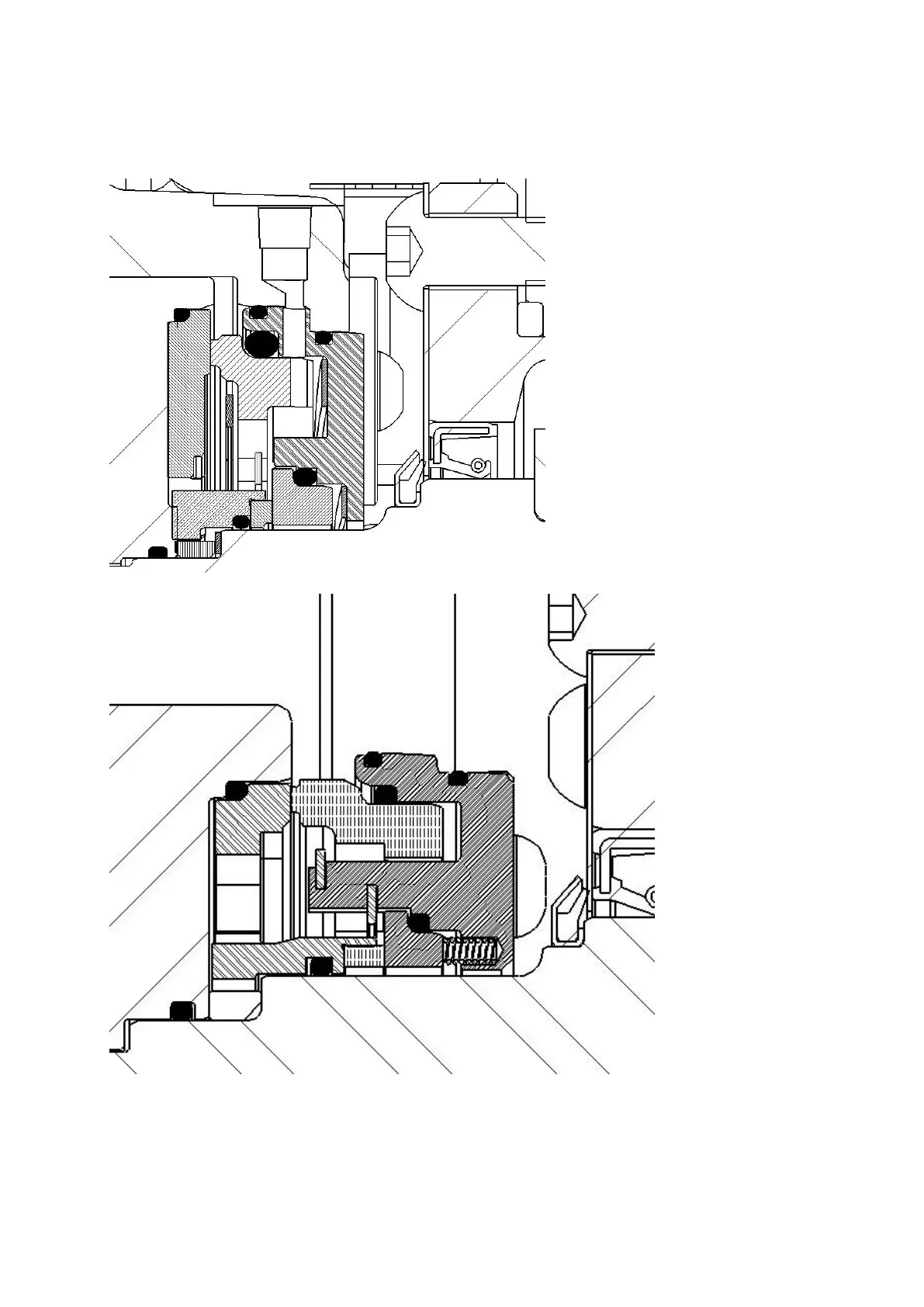
5.2 Double Seal Flushed.
Fig 42.1 Frame 6 Double Seal Cross Section
Fig 42.2 Frame 7 Double Seal Cross Section
Fig 43.1 Frame 6 & 7 Rotary Seal Face

Table of Contents