EasyManua.ls Logo

Yale 524150797

Yale 524150797
382 pages
To Next Page IconTo Next Page
To Next Page IconTo Next Page
To Previous Page IconTo Previous Page
To Previous Page IconTo Previous Page
Loading...
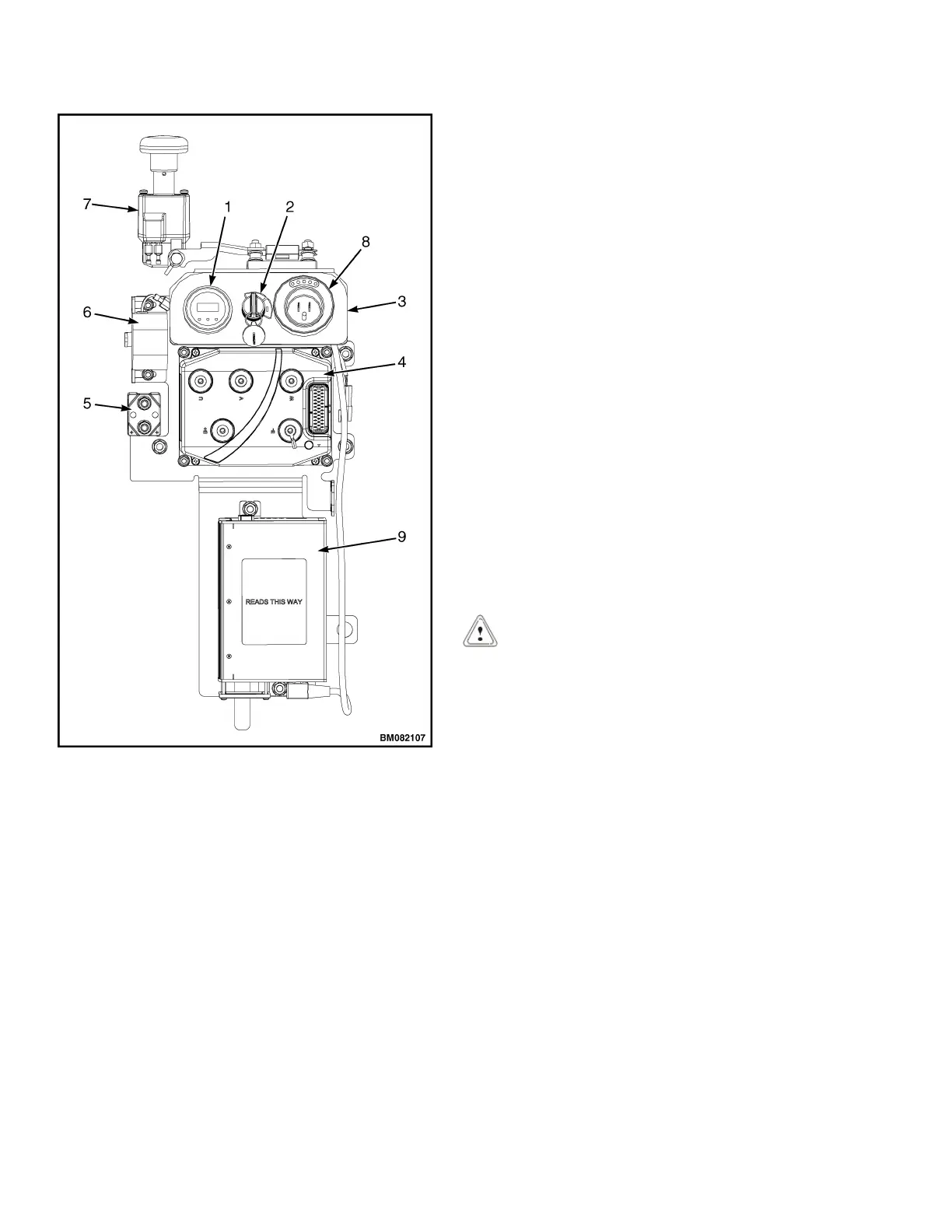
1. DISPLAY
2. KEY SWITCH
3. BRACKET
4. CONTROLLER
5. PUMP CONTACTOR
6. HORN
7. BATTERY DISCONNECT SWITCH AND MAIN
CONTACTOR
8. CHARGER CONVENIENCE PORT
9. CHARGER
Figure 3. Controller Panel Assembly
PUMP CONTACTOR COIL, CHECK
Disconnect coil wires. Test contactor coil using an
ohmmeter to measure the resistance. The coil should
read 55 ohms ±10%. Remove and replace contactor if
resistance readings indicate a short circuit in both
directions or if there is an open circuit in both
directions. Make sure coil wires are connected to the
proper terminals.
NOTE: The contactor contains no serviceable parts
and must be replaced as a complete assembly.
PUMP CONTACTOR, REPLACE
NOTE: Make an identification of any wires before
disconnecting them. The wires must be connected
correctly after checks or repairs.
Make sure battery is disconnected and capacitor in
controller is discharged. For the correct procedure to
discharge the controller, refer to Special Precautions.
Make an identification of the wires and cables, and
disconnect them from the contactor assembly.
Remove mounting screws and replace contactor
assembly. Install wires and cables as removed.
CONTACTOR TIPS, REPLACE
CAUTION
All contactor tips must be replaced at the same
time if any need replacing.
NOTE: If both the contactor tips and the coil will be
replaced, replace complete contactor as described in
Pump Contactor, Replace. Perform only the
procedures necessary to complete the repairs.
The contactor tips are made of special silver alloy. The
contacts will look black and rough from normal
operation. This condition does not cause problems
with the operation of the lift truck. Cleaning is not
necessary. DO NOT USE A FILE ON THE
CONTACTS. DO NOT LUBRICATE THE CONTACTS.
Replace contacts when the silver alloy is worn away to
the base support metal.
Repairs 2200 YRM 1508
6

Table of Contents

Related product manuals