EasyManua.ls Logo

Yamaha F80A - Fuel Pumps; Exploded Diagram; Removal and Installation Chart

Yamaha F80A
79 pages
Print Icon
To Next Page IconTo Next Page
To Next Page IconTo Next Page
To Previous Page IconTo Previous Page
To Previous Page IconTo Previous Page
Loading...
4-3
FUEL
E
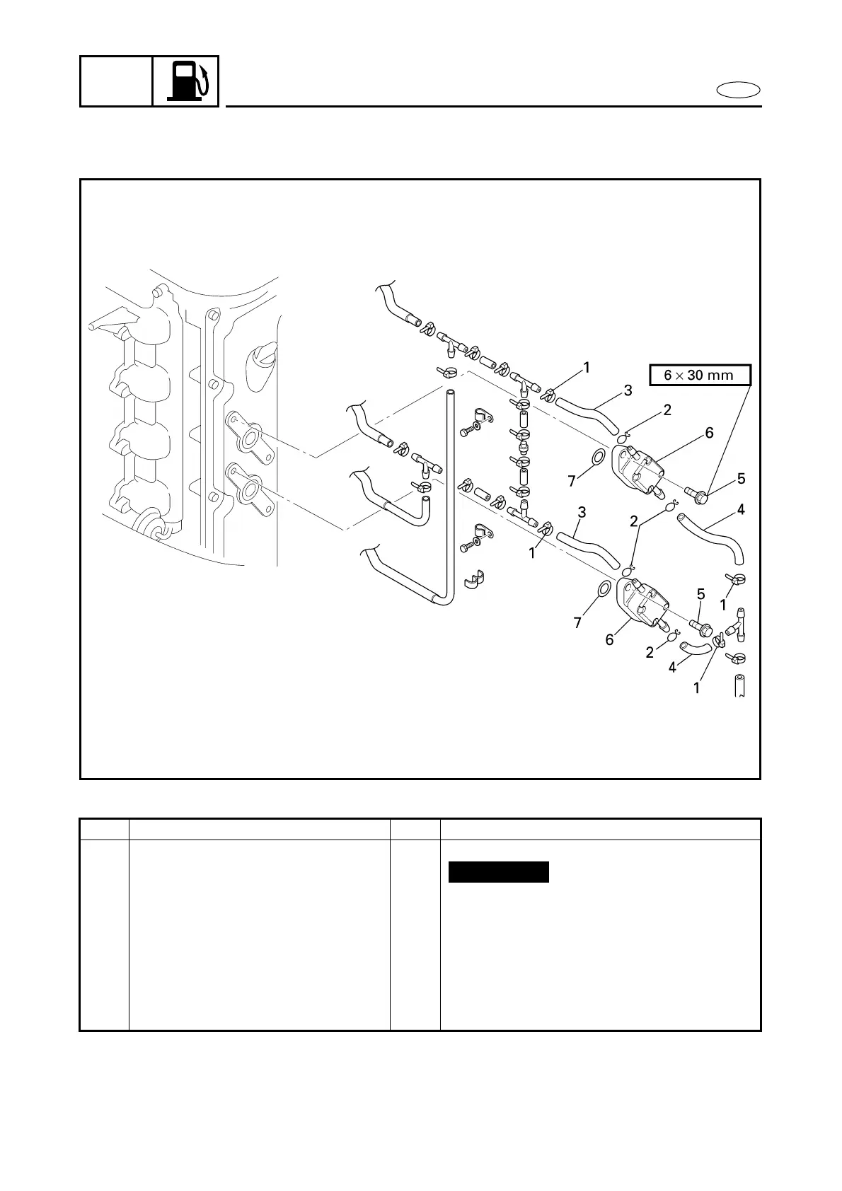
FUEL PUMPS
FUEL PUMPS
EXPLODED DIAGRAM
REMOVAL AND INSTALLATION CHART
Step Procedure/Part name Q’ty Service points
FUEL PUMP REMOVAL
Follow the left “Step” for removal.
1 Plastic locking tie 4
2 Clip 4
3 Fuel hose (fuel pump; OUT) 2
4 Fuel hose (fuel pump; IN) 2
5 Bolt 4
6 Fuel pump 2
7 O-ring 2
Reverse the removal steps for installation.
Not reusable

Other manuals for Yamaha F80A

Related product manuals