EasyManua.ls Logo

Yanmar 3JH3(8)E - Page 48

Yanmar 3JH3(8)E
48 pages
Print Icon
To Previous Page IconTo Previous Page
To Previous Page IconTo Previous Page
Loading...
President, Yanmar Marine Int’l
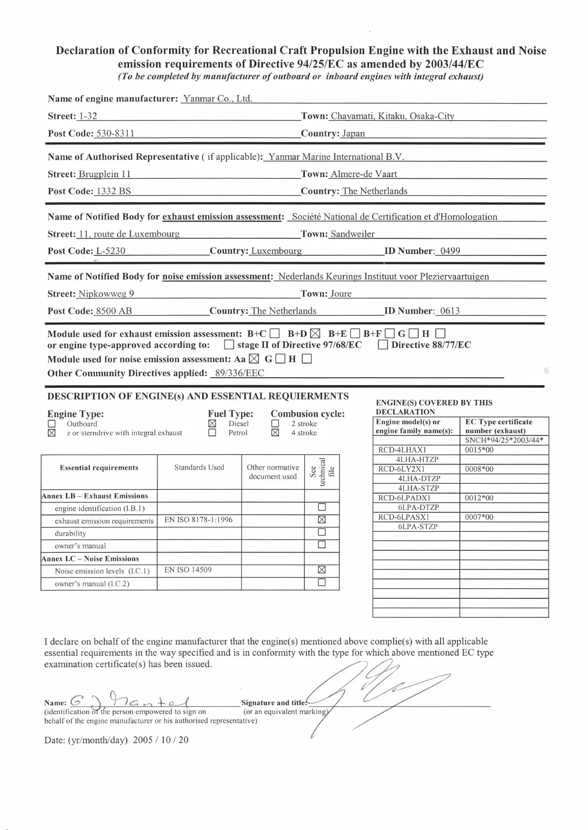
Declaration
of
Conformity
for Recreational
Craft
Propulsion Engine with
the
Exhaust
and
Noise
emission
requirements
of
Directive
94/25/EC
as amended
by
2003/44/EC
(To
be
completed
by
manufacturer
of
outboard or inboard engines with integral exhaust)
Street:-..:l::.--=3=2
___________________
Town: Chayamati, Kitaku, Osaka-City
Post Code: 530-8311
Country:~J_=.ap£;:..:a=n::....._
______________
_
Na~eofAuthor~edRepresentative(~applicabk):~Y~a=~~a=r~~~ar=in=e~In=t=e=~=a=h=·o=n=a~I=B~.V~.
____________
_
Street: Brugplein
11
Town: Almere-de Vaart
Post
Code:.....!1;..:::3.:;;.3.=.2....::;B::.;:S:::.....-
______________
Country:
The Netherlands
Na~e
of
Notified
Body
for
exhaust
e~ission
assess~ent:
Societe National de Certification et d'Homologation
Street: 11, route de Luxembourg
Town:....:S:o.;:a=n=d::;..;w.;....;e::...::i;;;:.;le=r
________________
_
Post
Code:....::L:::...-....:::5..:2:.::.3..;::.0
________
Country:
Luxembourg
ID
Nu~ber:_0-=-4..:....:;9....;;;.9
_______
_
Na~e
of
Notified
Body
for noise
e~ission
assess~ent:
Nederlands Keurings Instituut voor Pleziervaartuigen
Street:
Nipkowweg 9
Town:....:J~o~u=re~
__________________________________
___
Post
Code:--'=8=5..;::.0-"'-0....:...A=B::.....-
______
Country:
The Netherlands
ID
Nu~ber:_0-=-6:::....:1=-=3'--
______
_
Module
used for
exhaust
emission
assess~ent:
B+C D B+D
~
B+E D
B+F
D G D H D
or
engine
type-approved
according
to: D stage
II
of
Directive 97/68/EC D Directive 88177/EC
Module
used for noise
e~ission
assess~ent:
Aa
~
G D H D
~ther
Co~~unity
Directives applied:
_8-=-9~/~3~3~6/~E=E-=-C~
____________________
___
DESCRIPTI~N
~F
ENGINE(s) AND
ESSENTIAL
REQUIERMENTS
Engine Type:
o
Outboard
Fuel Type:
C8:l
Diesel
Co~busion
cycle:
o 2 stroke
C8:l
z
or
sterndrive with integral exhaust
o Petrol
C8:l
4 stroke
~
Essential requil'ements
Standards Used Other normative
u
Q)
.-
Q)
Q)
t:::
-
document
used
V)..t:::t;:
u
~
Annex I.B -
Exhaust
Emissions
engine identification
(LB
. I )
0
exhaust emission requirements
EN ISO 8178-1 : 1996
C8:l
durability
0
owner's
manual
0
Annex I.C - Noise Emissions
Noise emission levels (I.
e.
I)
EN
ISO 14509
C8:l
owner's
manual
(1.
e.
2)
0
ENGINE(S)
COVERED
BY
THIS
DECLARATION
Engine model(s)
or
EC
Type
certificate
engine family name(s):
number
(exhaust)
SNCH*94
/
25*2003/44*
RCD-4LHAXI
0015*00
4LHA-HTZP
RCD-6LY2Xl
0008*00
4LHA-DTZP
4LHA-STZP
RCD-6LPADXI
0012*00
6LPA-DTZP
RCD-6LPASXI
0007*00
6LPA-STZP
I declare on behalf
of
the engine manufacturer that the engine(
s)
mentioned above complie(
s)
with all applicable
essential requirements in the way specified and
is
in conformity with the type for which above mentioned EC type
examination certificate(s) has been issued.
~
Name: G .
'\
Cf--t
c
.........
·b
04
Signature
and
title.
----+-----------::;"iI"""------------------
(identification '&ftlie person empowered to sign on (or an equivalent marking
behalf
of
the engine manufacturer
or
his authorised representative)
Date: (yr/month/day) 2005 I
10
I 20

Related product manuals