EasyManua.ls Logo

YASKAWA L1000E - Control I;O Configuration

YASKAWA L1000E
236 pages
Print Icon
To Next Page IconTo Next Page
To Next Page IconTo Next Page
To Previous Page IconTo Previous Page
To Previous Page IconTo Previous Page
Loading...
3 Electrical Installation
YASK AWA TOEPYAIL1E01A YASKAWA AC Drive L1000E Quick Start Guide 49
Electrical Installation
3
Control I/O Configuration
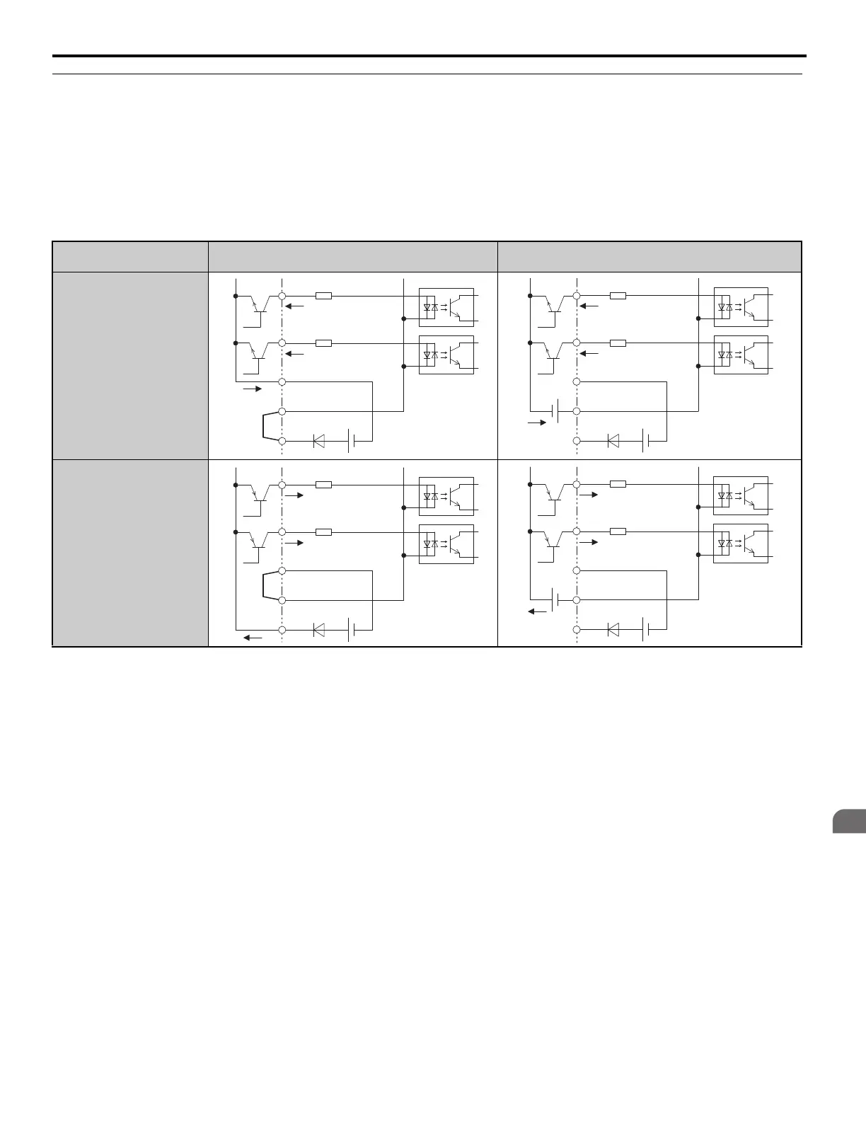
Setting Sink/Source with Input Terminals SN and SP
Use the wire jumper between terminals SC and SP or SC and SN to select between Sink mode, Source mode or external
power supply for the digital inputs S1 to S8 as shown in Table 16 (Default: Sink mode, internal power supply).
NOTICE: Damage to Equipment. Do not short terminals SP and SN. Failure to comply will damage the drive.
Table 16 Digital Input Sink / Source / External Power Supply Selection
Drive Internal Power Supply
(Terminal SN and SP)
External 24 Vdc Power Supply
Sinking Mode (NPN)
Sourcing Mode (PNP)
SC
S8
S7
24 Vdc
SP
SN
SC
S8
S7
24
Vdc
SP
SN
External
24
Vdc
SC
S8
S7
24 Vdc
SP
SN
SC
S8
S7
24 Vdc
SP
SN
External
24 Vdc

Related product manuals