EasyManua.ls Logo

YASKAWA SGM7D - External Dimensions

YASKAWA SGM7D
337 pages
To Next Page IconTo Next Page
To Next Page IconTo Next Page
To Previous Page IconTo Previous Page
To Previous Page IconTo Previous Page
Loading...
9.4 Serial Converter Unit
9.4.3 External Dimensions
9
Cables and User-Assembled Wiring Materials for Linear Servomotors
9-33
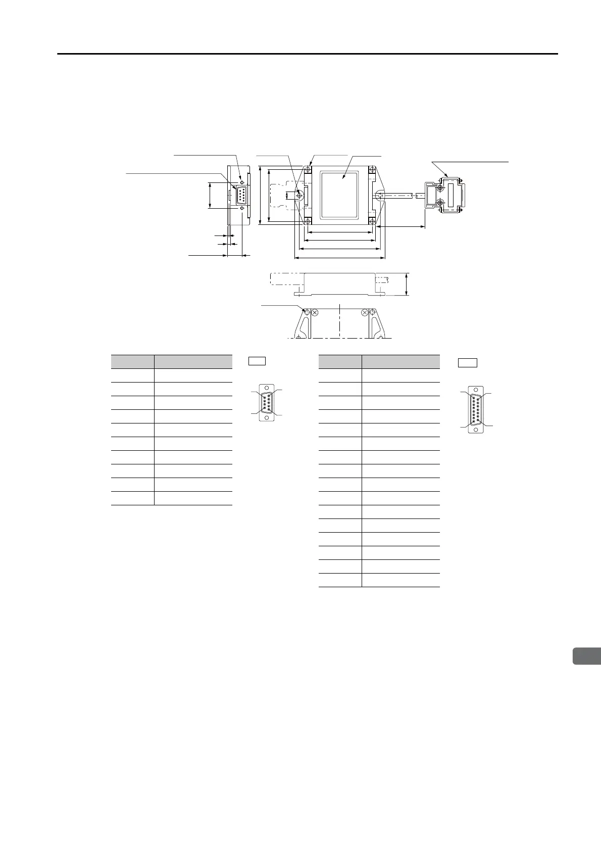
Serial Converter Unit without Polarity Sensor Cable
(for Linear Encoder from Renishaw plc)
Model: JZDP-
005-

Note: 1. Do not connect the unused pins.
2. Contact Renishaw plc for details on cables (analog 1 Vp-p output, D-sub 15-pin, male) from Renishaw plc.
However, the BID and DIR signals are not connected.
3. Use the Linear Encoder connector to change the origin position specifications of the Linear Encoder.
82 ± 0.3
65 ± 0.3
72
90
1.5
3
14.35 ± 0.4
24.99 ± 0.4
22.5
300 ± 30
10
52 ± 0.3
60
Unit: mm
4 × M5 × 10
Linear Encoder-end
Analog signal input connector (CN2)
Nameplate
4 × 4.2 dia. holes
2 × 4.2 dia. holes
SERVOPACK end
serial data output connector (CN1)
2 × #4-40 UNC screws
Pin Signal
1+ 5 V
2Phase-S output
3Not used
4Not used
50 V
6 /Phase-S output
7Not used
8Not used
9Not used
Case Shield
9
6
1
5
CN1
17-Series Connector:
17LE-13090-27-FA
from DDK Ltd.
(Socket)
SERVOPACK-end
serial data outputs
Pin Signal
1 cos input (V1-)
2 sin input (V2-)
3 Ref input (V0+)
4+ 5 V
55 Vs
6Not used
7Not used
8Not used
9 cos input (V1+)
10 sin input (V2+)
11 /Ref input (V0-)
12 0 V
13 0 Vs
14 Not used
15 Inner shield (0 V)
Case Shield
1
8
9
15
CN2
Linear Encoder-end
analog signal inputs
17-Series Connector:
17JE-13150-02 (D8C) A-CG
from DDK Ltd.
(Socket)

Table of Contents

Other manuals for YASKAWA SGM7D

Related product manuals