EasyManua.ls Logo

YASKAWA V1000

YASKAWA V1000
27 pages
To Next Page IconTo Next Page
To Next Page IconTo Next Page
To Previous Page IconTo Previous Page
To Previous Page IconTo Previous Page
Loading...
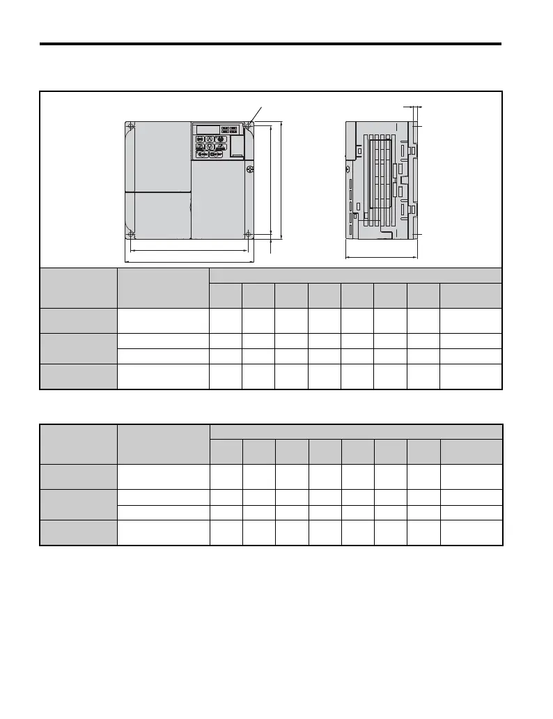
5 Dimensions
20 YASKAWA ELECTRIC TOBP C710606 21D YASKAWA AC Drive - V1000 Finless Installation Guide
Table 12 V1000 Finless Dimensions for Models BA0012~4A0011(metric)
Table 13 V1000 Finless Dimensions for Models BA0012~4A0011 (U.S. units)
Voltage Class
Drive Model
CIMR-V
Dimensions (mm)
W H D W1 H1 H2 t1
Weight
(kg)
Single-Phase
200 V class
BA0012 140 128 98 128 118 5 4 1.4
Three-Phase
200 V class
2A0018 140 128 78 128 118 5 4 1.3
2A0020 140 128 78 128 118 5 4 1.3
Three-Phase
400 V class
4A0011 140 128 78 128 118 5 4 1.3
Voltage Class
Drive Model
CIMR-V
Dimensions (in)
W H D W1 H1 H2 t1
Weight
(lb.)
Single-Phase
200 V class
BA0012 5.52 5.04 3.86 5.04 4.65 0.20 0.16 3.09
Three-Phase
200 V class
2A0018 5.52 5.04 3.07 5.04 4.65 0.20 0.16 2.87
2A0020 5.52 5.04 3.07 5.04 4.65 0.20 0.16 2.87
Three-Phase
400 V class
4A0011 5.52 5.04 3.07 5.04 4.65 0.20 0.16 2.87
4-M4
W
W1
H
H1
H2
D
t1

Other manuals for YASKAWA V1000

Related product manuals