EasyManua.ls Logo

YASKAWA V1000 - General Safety Information

YASKAWA V1000
57 pages
Print Icon
To Next Page IconTo Next Page
To Next Page IconTo Next Page
To Previous Page IconTo Previous Page
To Previous Page IconTo Previous Page
Loading...
12 YASKAWA ELECTRIC TOBP C730600 60C V1000 Option SI-EN3/V Installation Manual
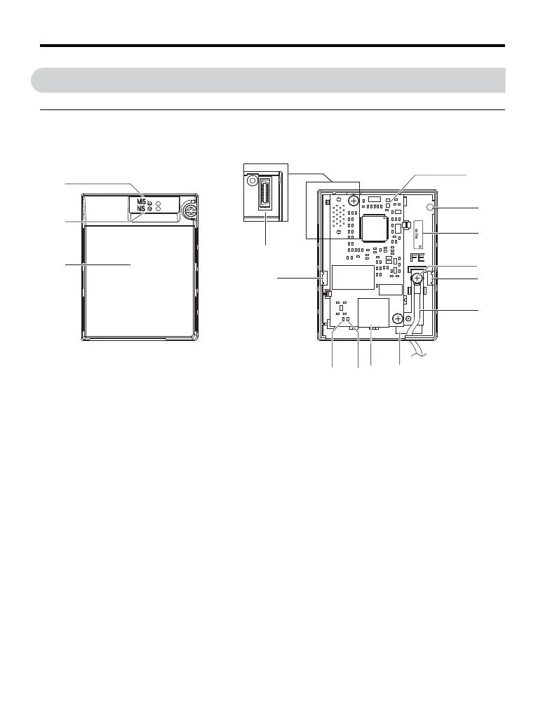
4 Option Components
4 Option Components
u
SI-EN3/V Option
Figure 1
Figure 1 Option Unit Components
A LED (MS)
<1> H Mounting tabs
B–LED (NS)
<1> I Ground wire <2>
C Option cover J Pass-through hole for wire
<1> Refer to Option LED Display on page 16 for details on the LEDs.
<2> A selection of ground wires are packaged loose in the option shipping package. Connect the appropriate ground
wire based on drive model during installation.
D EtherNet/IP PCB K Communication connector CN1 (RJ45)
E Screw hole (attaching option cover) L LED (LINK/ACT)
<1>
F Nameplate M LED (10/100) <1>
G Functional earth cable connection (FE) N Option connector
A
B
C
H
E
D
H
G
I
J
N
F
K
00000000000000
SI-EN3/V
1XXX
L
M
Option with cover removed
Underside
Option with cover attached
V1000

Other manuals for YASKAWA V1000

Related product manuals