EasyManua.ls Logo

Zenith A27A11D - Power Supply

Zenith A27A11D
119 pages
Print Icon
To Next Page IconTo Next Page
To Next Page IconTo Next Page
To Previous Page IconTo Previous Page
To Previous Page IconTo Previous Page
Loading...
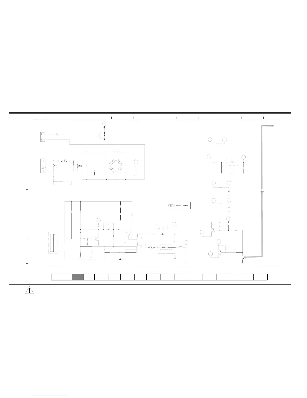
CRITICAL SAFETY COMPONENTS ARE IDENTIFIED BY THE LETTER “X“ IN THEIR
COMPONENT DESIGNATORS. REPLACE ONLY WITH PART NUMBERS SPECIFIED.
ALL SYMBOLS WITH “M” ON END OF DESIGNATOR
INDICATE SURFACE MOUNTED COMPONENT
6-12
GA SHEET 12
GA2 POWER SUPPLY
D
1211109
G
F
E
C
B
87654321
5
4
32
1
15
15.14
14.36
15.11
14.36
15.14
0.06
0
0.66
0.34
0.1
9
0
12.8
0.11
155
0.34
-41.7
DEGAUSSER
LINE
A.C.
TO
0
H.S.4
A.C. LINE INPUT
SWITCH MODE REGULATOR
3
1
2
E
B
C
1
2
4
3
2
1
5
6
3
4
1
9
16
14
15
11
E
B
C
E
B
C
IN OUT
E
B
C
46
13
VSB
+15
103-344-02A
1000V
0.001
500V
470pF
47
5.1V
47
1W
121-1348
VSW
+15
200V
330uF
500V
0.0047
F-29722
38-102
0.001
500V
180K
1/2W
103-254-01
PWRCONT
SHT.12
VSW
+15
220uF
200V
25V
100uF
500V
0.001
25V
2200uF
25V
1000uF
+9V
SW
PROV
250VAC
VSW
+15
VDC
150
VDC
150
103-344-02A
680
1/2W
3W
6.8
126-03585
223-00028
33uH
+15
VSB
+123
VDC
+15
VSW
150
VDC
+5V
SW
0.68
5W
3W
2.2
1250V
0.01
12-9632
1000V
1000pF
95-4473
1000V
1000pF
121-1102A
121-1340A
10K
100V
0.033
221-213-09
126-2131-01
F-52599
500V
1000pF
63-10710A
22uF
63V
500V
0.0047
12-9632
121-1102A
1/2W
22
103-344-02A
5.1V
100MF
16V
4.7
1/2W
5.6M
1/2W
1K
1000V
1000pF
500V
220pF
2W
15K
1000V
1000pF
4.7K
VDC
+123
136-148-23
3A-250V
+33V
16V
PROV
VSB
+15
136-114-23A
4A-250V
1K
2W
330
+15V
AUD
500V
1000pF
10K
+5V
SB
95-4285
PROV
25V
1000uF
VSB
+15
3W
0.18
DX3407
103-476A(4)
CX3409
CX3414
RX3406
103-279-10A
ZD3401
58-546-03
3R8
RX3407
QX3401
CX3407
CX3402
LX3403
EX3401
CX3412
58-546-02
3T8
RX3404
DX3405
CX3420
CX3416
CX3410
CX3424
CX3408
CX3401
DX3408
RX3417
RX3420
ICX3431
L3404
20-4462-18A
RX3401
RX3424
CX3415
D3409
F-51115
CX3403
TX3401
CX3405
Q3403
Q3402
R3414M
CX3411
IC3441
195-161
KX3401
C3421
RX3415
CX3413
CX3400
F-51116
D3410
Q3404
RX3408
DX3406
103-279-10A
ZD3402
C3428
RX3409
RX3400
R3421
CX3404
CX3418
RX3411
CX3406
R3423
FX3402
C3430
FX3401
R3418
RX3416
C3419
R3422M
LX3401
C3427
CX3431
RX3403
Block Diagram #5
Sheet 17
M ODUL E
009-01789 009-01789-01 009-01790 009-01790-01 009-01791 009-01791-01 009-01791-02 009-01831 009-01831-01 009-01831-02 009-01976 009-01976-01 009-01977 009-01977-01
FEATURES MONO MONO LC STEREO LC STEREO LC STEREO LC STEREO LC STEREO
MTS STEREO MTS STEREO MTS STEREO
LC STEREO LC STEREO
MONO MONO
COMPONENT LEVEL
REPA IR ONLY

Table of Contents

Related product manuals