EasyManua.ls Logo

Zenith A27A11D - Video Output

Zenith A27A11D
119 pages
Print Icon
To Next Page IconTo Next Page
To Next Page IconTo Next Page
To Previous Page IconTo Previous Page
To Previous Page IconTo Previous Page
Loading...
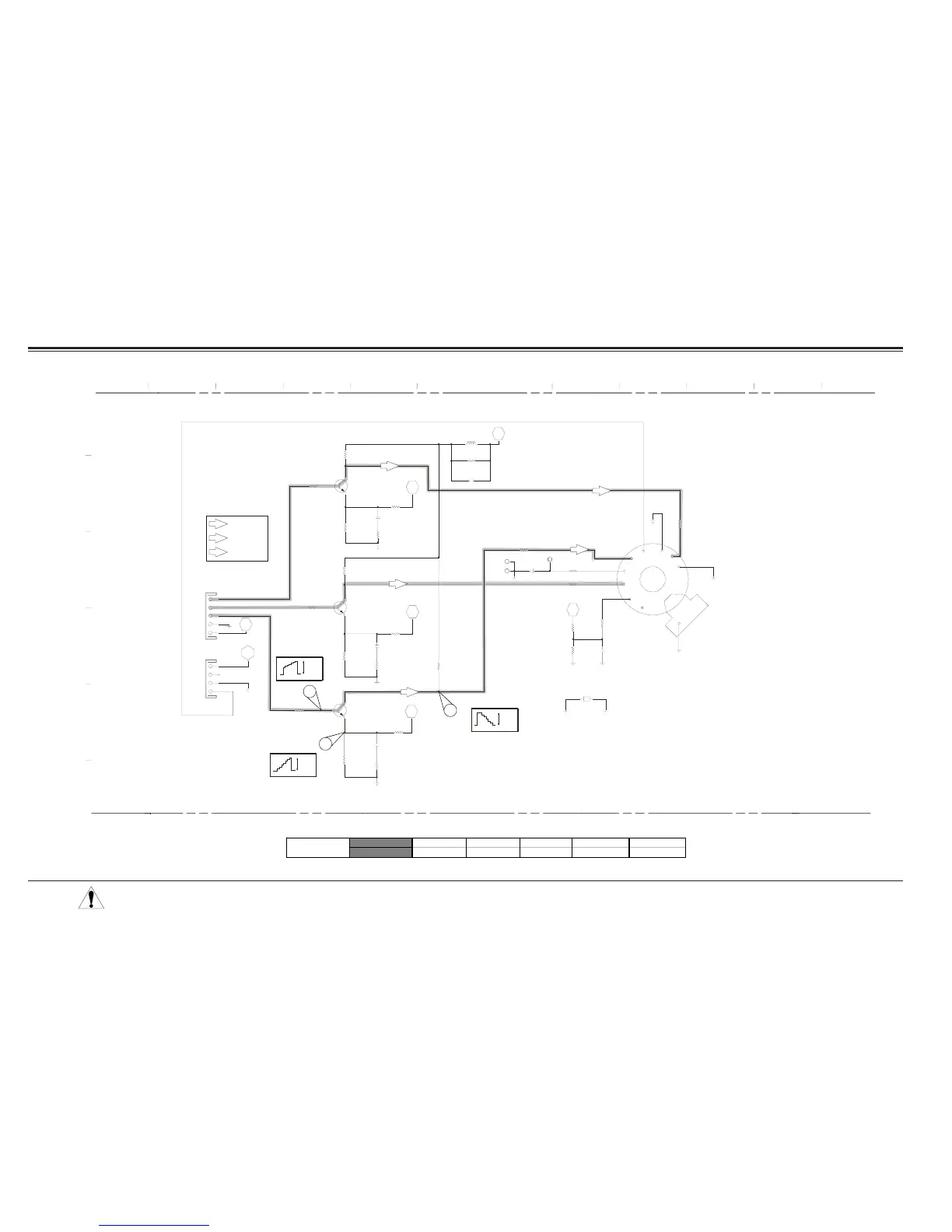
CRITICAL SAFETY COMPONENTS ARE IDENTIFIED BY THE LETTER “X“ IN THEIR
COMPONENT DESIGNATORS. REPLACE ONLY WITH PART NUMBERS SPECIFIED.
ALL SYMBOLS WITH “M” ON END OF DESIGNATOR
INDICATE SURFACE MOUNTED COMPONENT
6-28
GA SHEET 28
GA3 VIDEO OUTPUT
G2
RED-IN
RED
GREEN-IN
BLUE-IN
BLUE
GREEN
1211109
G
F
E
D
C
B
87654321
12
11
10
9
8
7
6
5
4
1
2.4 V
1.16V
WF26
WF27
130 V
WF25
20 uS
20 uS
20 uS
165.5
2.0
2.3
2.1
2.3
165.9
2.3
2.0
165.3
1
2
3
4
E
B
C
E
B
C
E
B
C
5
1
2
3
4
1K
1/2W
750
12K
2W
WF
27
SW
+9V
470pF
50V
215
VDC
220uH
WF
26
2
SW
+9V
2
+9V
SW
VDC
215
VDC
215
1/2W
1K
1
2
0.01
1
50V
470pF
47
1K
1/2W
1K
1/2W
1K
1/2W
WF
25
1/2W
2.2K
500V
470pF
SW
+9V
470pF
50V
78-3394-09
1
1
1
1K
1/2W
12K
2W
2W
2
750
750
22
22
22
180
180
180
12K
2W
47
2
2
1
1/2W
220K
PROV
47
22R5117
R5107M
RX5126
C5101M
20-3907-28A
L5100
DAG1
Q5102
121-1291-01
R5122
C5104
C5102M
R5101M
DAG
R5118
R5119
R5116
R5123
C5109
G2
C5103M
Q5101
121-1291-01
CRT1
F-47318
149-583-01
L5102
R5120
RX5127
R5108M
R5109M
R5113M
R5114M
R5115M
R5104M
R5105M
R5106M
RX5128
R5102M
Q5103
121-1291-01
R5121
C5110
R5103M
Red Drive
Green Drive
Blue Drive
R
B
G
B
B
G
B
B
M ODULE
009-01996 009-01997 009-01997-01 009-01998 009-02041
FEATURES MTS STEREO MTS STEREO MTS STEREO MTS STEREO MTS STEREO
COMPONENT LEVEL
REPA IR ONLY

Table of Contents

Related product manuals