EasyManua.ls Logo

Zenith A27A11D - Ga2 Schematics; Interconnect Diagram

Zenith A27A11D
119 pages
Print Icon
To Next Page IconTo Next Page
To Next Page IconTo Next Page
To Previous Page IconTo Previous Page
To Previous Page IconTo Previous Page
Loading...
CRITICAL SAFETY COMPONENTS ARE IDENTIFIED BY THE LETTER “X“ IN THEIR
COMPONENT DESIGNATORS. REPLACE ONLY WITH PART NUMBERS SPECIFIED.
ALL SYMBOLS WITH “M” ON END OF DESIGNATOR
INDICATE SURFACE MOUNTED COMPONENT
6-11
GA SHEET 11
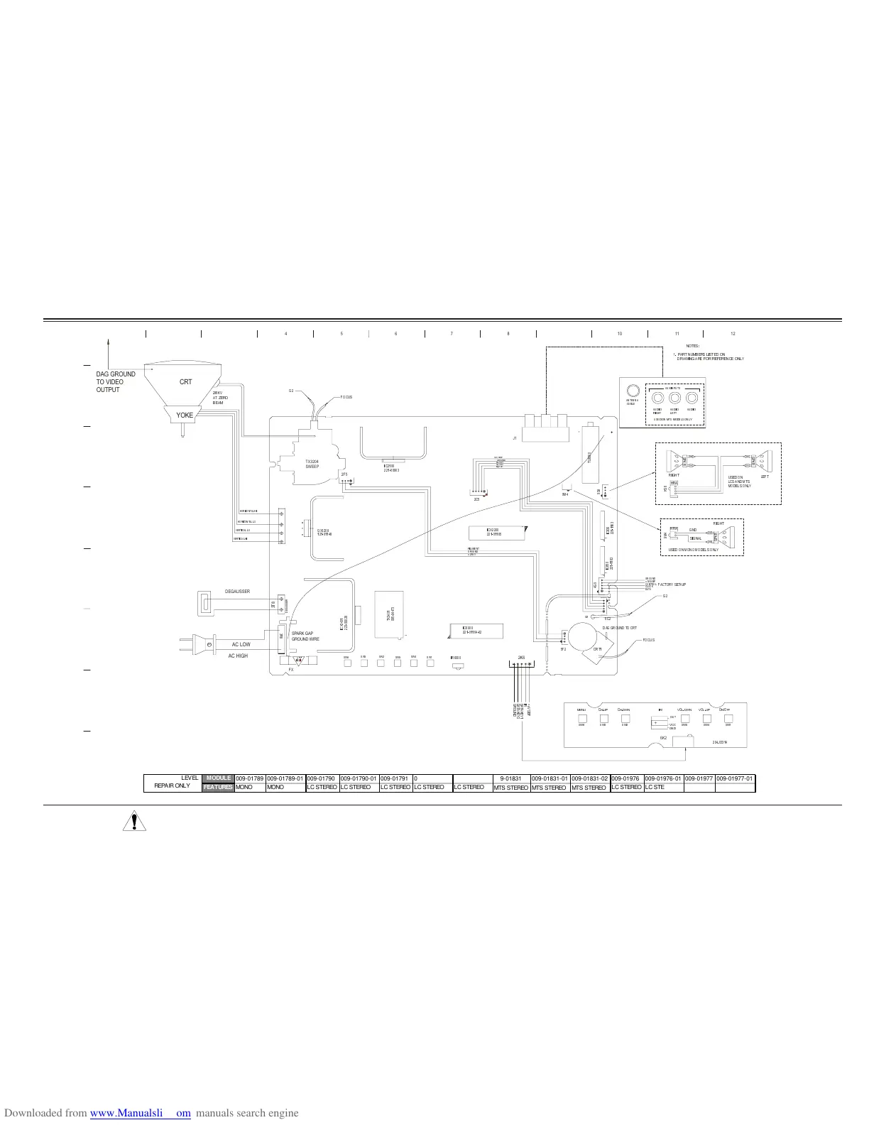
GA2 INTERCONNECT DIAGRAM
6
3
.
5
+5$
5,*+7
6
6
3
.
5
/()7
86('21
/&6$1'076
02'(/621/<
6
3
.
5
+5$
5,*+7
0
*1'
6,*1$/
86('21021202'(/621/<
'$**5281'
729,'(2
287387
<2.(
&57
.9
$7=(52
%($0
+25,=217$/+,
+25,=217$//2
9(57,&$/ /2
9(57, &$/+,
8/8/
$&+,*+
$&/2:
'(*$866(5
7
'
(
*
$
8
6
6
(
5
*
)2&86
$17(11$
&$%/(
$8;,13876
$8',2
5,*+7
$8',2
/()7
$8',2
86('2107602'(/621/ <
*
)2&86

9
*5281'
),/$0(17
%
287
*
287
5
287
*5281'
96:)
*5281'
9
6%)
&21752/
&/2&.
'$7$
63$5.*$3
*5281':,5(

212))92/':1 92/83&+':1&+830(18
6:
6:
6:
6:6:
6:
.
,5
287
9&&
*1'
*
5
2
8
1
'
'
$
7
$
.
(
<
'
$
7
$
.
(
<
,
5
9
6
%
)
.
)
,&;

7;
6:(( 3
'$**5281'72&57
&
*
&57
,&

)
6
0
%
&
(
4;

7
8
,
&
,
&
,5
6:
6:
6:
6:
6:
6:
&
*
-
,&

B$B9
);
7
;
,
&
;
5

<
3$57180%(56/,67('21
'5$:,1*$5()255()(5(1&(21/<
127(6
+
*
)
(
'
&
%
  
)$&725<6(783
M ODULE
009-01789 009-01789-01 009-01790 009-01790-01 009-01791 009-01791-01 009-01791-02 009-01831 009-01831-01 009-01831-02 009-01976 009-01976-01 009-01977 009-01977-01
FEATURES MONO MONO LC STEREO LC STEREO LC STEREO LC STEREO LC STEREO
MTS STEREO MTS STEREO MTS STEREO
LC STEREO LC STEREO
MONO MONO
COMPONENT LEVEL
REPA IR ONLY
GA2 SCHEMATICS

Table of Contents

Related product manuals