EasyManua.ls Logo

ABB 4630 - Calibration; Equipment Required; Preparation

ABB 4630
40 pages
Print Icon
To Next Page IconTo Next Page
To Next Page IconTo Next Page
To Previous Page IconTo Previous Page
To Previous Page IconTo Previous Page
Loading...
30
8 CALIBRATION
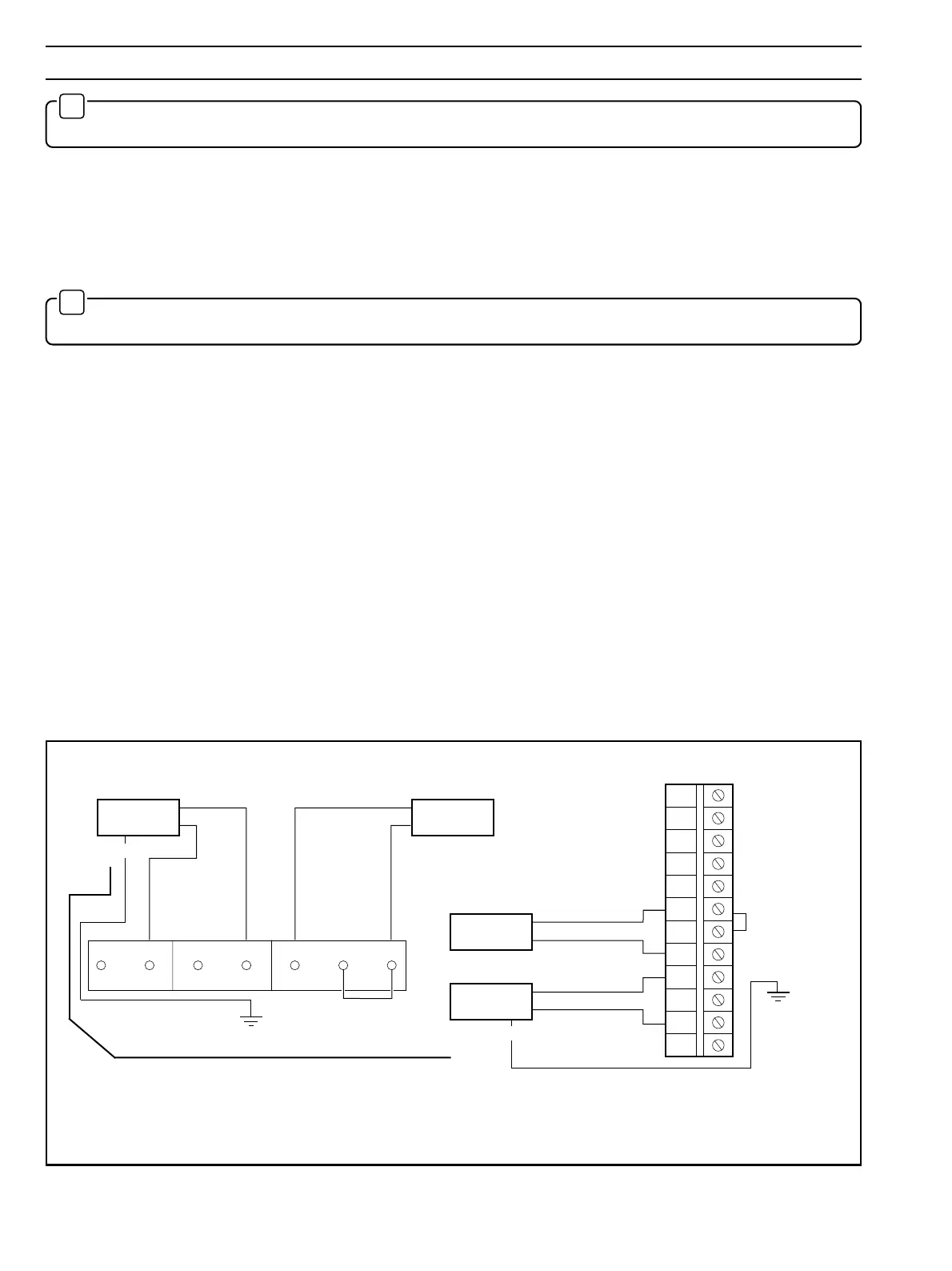
Fig. 8.1 Instrument Terminal Links and Decade Resistance Box Connections
Note. The instrument is calibrated by the Company prior to despatch and recalibration should be carried out only if the
instrument's accuracy is suspect and suitably calibrated test equipment is available.
8.1 Equipment Required
a) Millivolt source (pH or Redox input simulator, if required) 1000 to +1000mV.
b) Decade resistance box (PT100 input simulator): 0 to 1k (in increments of 0.01).
c) Digital milliammeter (current output measurement): 0 to 20mA.
Note. Resistance boxes have an inherent residual resistance which may range from a few m up to 1. This value must
be taken into account when simulating input levels, as should the overall tolerance of the resistors within the boxes.
8.2 Preparation
a) Switch off the supply and disconnect the electrode system, temperature compensator and current output from the instrument's
terminal blocks see Fig. 4.4 (page 9) or Fig. 4.5 (page 10).
b) Wall-mounted Instruments (Fig 8.1A):
1) Link terminals 6 & 7.
2) Connect the millivolt source to terminals 2 & 4 to simulate the pH or Redox input. Connect the millivolt source earth to the
Case Earth Stud.
3) Connect the 0 to 1k decade resistance box to terminals 5 & 7 to simulate the PT100.
4) Connect the milliammeter to the retransmission output terminals see Fig. 4.4 (page 9).
Panel-mounted Instruments (Fig 8.1B):
1) Link terminals 6 & 7.
2) Connect the millivolt source to terminals 9 & 11 to simulate the pH or Redox input. Connect the millivolt source earth to the
Case Earth Stud.
3) Connect the 0 to 1k decade resistance box to terminals 6 & 8 to simulate the PT100.
4) Connect the milliammeter to the retransmission output terminals see Fig. 4.5 (page 12).
c) Switch on the supply and allow ten minutes for the circuits to stabilize.
d) Select the FACTORY SETTINGS page and carry out Section 8.3.
A Wall-/Pipe-mounted Instruments B Panel-mounted Instruments
1234567
Terminal link
Decade Resistance Box Connections
1
2
3
4
5
6
7
8
9
10
11
12
TBB
Decade Resistance
Box Connections
Terminal link
Case Earth Stud
Case
Earth Stud
pH/Redox
Input Simulator
PT100
Simulator
PT100
Simulator
pH/Redox
Input Simulator
Earth
Earth

Related product manuals