EasyManua.ls Logo

ABB ACS800-U7 - Page 51

ABB ACS800-U7
148 pages
Print Icon
To Next Page IconTo Next Page
To Next Page IconTo Next Page
To Previous Page IconTo Previous Page
To Previous Page IconTo Previous Page
Loading...
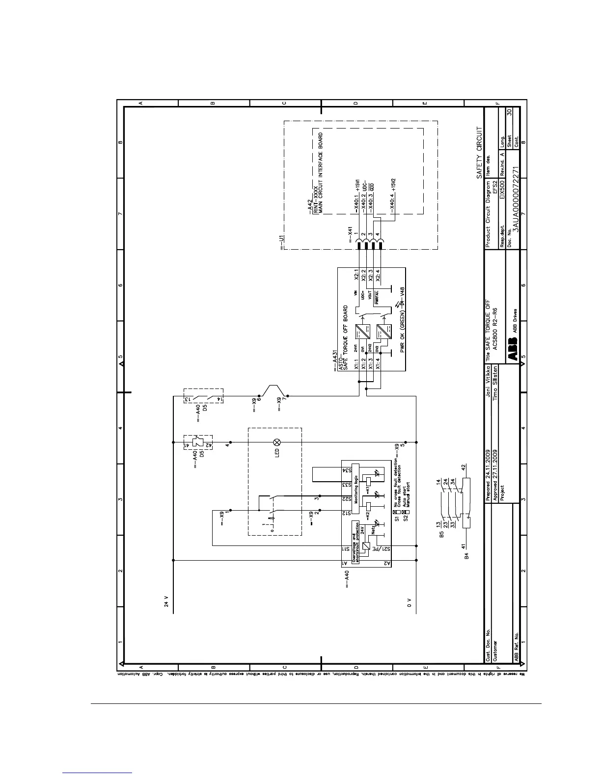
Planning the electrical installation
51

Table of Contents

Related product manuals