EasyManua.ls Logo

ABB RED615 - Default I;O Connections; Functions

ABB RED615
116 pages
Print Icon
To Next Page IconTo Next Page
To Next Page IconTo Next Page
To Previous Page IconTo Previous Page
To Previous Page IconTo Previous Page
Loading...
3.3.2 Functions
RED615
AT REMOTE
END
ALSO AVAILABLE
- Binary Signal Transfer function (BST)
- Disturbance and fault recorder
- Event log and recorded data
- Local/Remote push button on LHMI
- Self-supervision
- Time synchronization: IEEE 1588 v2,
SNTP, IRIG-B
- User management
- Web HMI
OR
AND
LINE DIFFERENTIAL PROTECTION AND CONTROL RELAY
PROTECTION
LOCAL HMI
STANDARD
CONFIGURATION
REMARKS
Optional
function
No. of
instances
Alternative
function to be
defined when
ordering
OR
Io/Uo
Calculated
value
R
L
ClearESC
I
O
Configuration A
System
HMI
Time
Authorization
R
L
ClearESC
I
O
U12 0. 0 kV
P 0.00 kW
Q 0.00 kVAr
IL2 0 A
A
With in-zone power transformer support
RED615
C
CONTROL AND INDICATION
1)
MEASUREMENT
Analog interface types
1)
Current transformer
Voltage transformer
1)
Conventional transformer inputs
Object Ctrl
2)
Ind
3)
CB
DC
ES
1)
Check availability of binary inputs/outputs
from technical documentation
2)
Control and indication function for
primary object
3)
Status indication function for
primary object
1 -
2 3
1 2
- I, Io
- Limit value supervision
- Load profile record
- Symmetrical components
4
-
OI
79
Master Trip
Lockout relay
94/86
Io>>
51N-2
BST
BST
Io>HA
51NHA
3I>/Io>BF
51BF/51NBF
I2>
46
I2/I1>
46PD
3Ith>F
49F
3I>>>
50P/51P
3I>
51P-1
3I2f>
68
3I>>
51P-2
3dI>L
87L
SOTF
SOTF
18×
MAP
MAP
COMMUNICATION
Protocols:
IEC 61850-8-1
Modbus
®
IEC 60870-5-103
Interfaces:
Ethernet: TX (RJ45), FX (LC)
Serial: Serial glass fiber (ST),
RS-485, RS-232
Redundant protocols:
HSR
PRP
RSTP
CONDITION MONITORING
AND SUPERVISION
OPTS
OPTM
TCS
TCM
MCS 3I
MCS 3I
PCS
PCS
CBCM
CBCM
HIF
HIZ
Io>>>
50N/51N
Io>
51N-1
3Ith>T/G/C
49T/G/C
CCM_L 3I, I2
CCM_L 3I, I2
3I
Io
Io
Io
3I
3IB
3IB
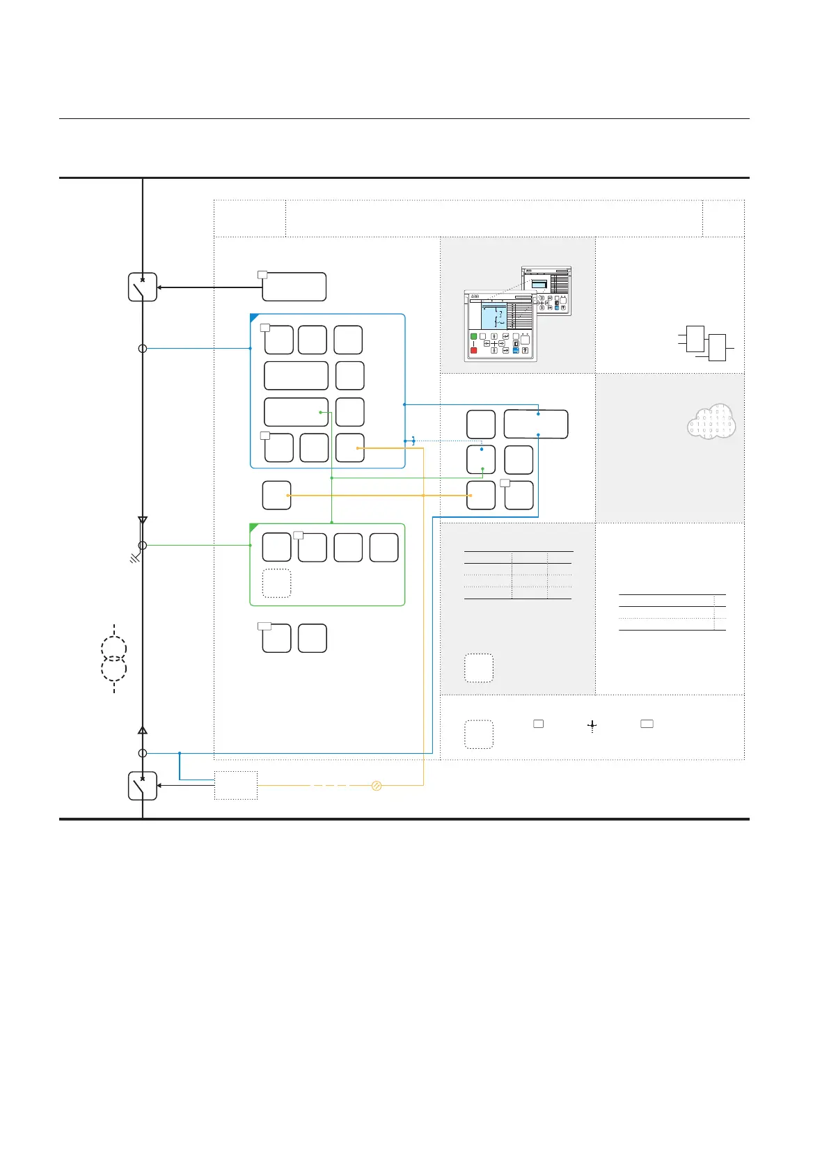
GUID-E15D5C7F-A809-48B6-8C7E-54BA598228EA V1 EN
Figure 14: Functionality overview for standard configuration C
3.3.2.1 Default I/O connections
Connector pins for each input and output are presented in the Protection relay's
physical connections section.
Section 3 1MRS758127 C
RED615 standard configurations
38 RED615
Application Manual

Table of Contents

Other manuals for ABB RED615

Related product manuals