EasyManua.ls Logo

Abicor Binzel CAT2 - Funktionsbeschreibung

Abicor Binzel CAT2
Print Icon
To Next Page IconTo Next Page
To Next Page IconTo Next Page
To Previous Page IconTo Previous Page
To Previous Page IconTo Previous Page
Loading...
DE - 13
CAT2 5 Funktionsbeschreibung
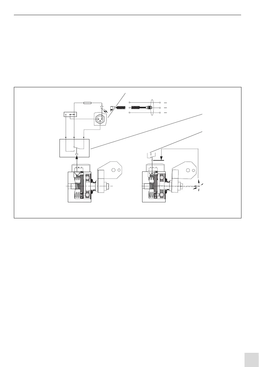
5 Funktionsbeschreibung
Die eingesetzten Federn „S“, „M“, „L“ oder „XL“ wirken mit ihrer Haltekraft
direkt auf den Auslöseflansch und fixieren die durch Kugeln positionierte
Schaltachse in Null-Stellung. Im Falle einer Kollision kippt die Schaltachse,
drückt mit dem Auslöseflansch den Federteller in Richtung Gehäuseboden und
der Schaltnocken löst sich vom Betätigungselement des Mikroschalters. Die
angelegte Schaltspannung wird unterbrochen.
1 Flanschstecker 3-polig 2 Mikroschalter in Ruhestellung 3 Mikroschalter ausgelöst
Abb. 5 Funktionsschema
NONC
3
1
2
3
1
2
R 1,2k
D1
321
14
2
3
Signal
GND
24 V DC
2
C
1
3
2

Table of Contents