EasyManua.ls Logo

Abicor Binzel CAT2 - Functional Description

Abicor Binzel CAT2
Print Icon
To Next Page IconTo Next Page
To Next Page IconTo Next Page
To Previous Page IconTo Previous Page
To Previous Page IconTo Previous Page
Loading...
EN - 13
CAT2 5 Functional Description
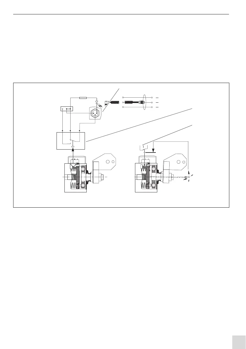
5 Functional Description
The inserted springs "S", "M", "L" or "XL" act with their holding force directly
upon the triggering flange and fix the switching axis in the zero position by
balls. In case of collision the switching axis tips over and the triggering flange
pushes the spring plate in direction of the bottom of the case and the switch
cam detaches itself from the actuating element of the micro switch. The applied
switching voltage is interrupted.
1 3-pin flange plug 2 Micro switch in resting position 3 Micro switch triggered
Fig. 5 Functional diagram
NONC
3
1
2
3
1
2
R 1,2k
D1
321
14
2
3
Signal
GND
24 V DC
2
C
1
3
2

Table of Contents