EasyManua.ls Logo

Abicor Binzel CAT2 - Description du Fonctionnement

Abicor Binzel CAT2
Print Icon
To Next Page IconTo Next Page
To Next Page IconTo Next Page
To Previous Page IconTo Previous Page
To Previous Page IconTo Previous Page
Loading...
FR - 13
CAT2 5 Description du fonctionnement
5 Description du fonctionnement
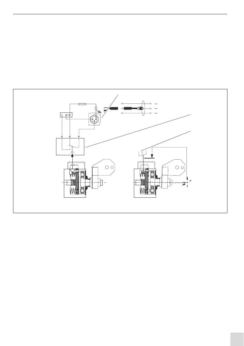
Les ressorts utilisés «S», «M», «L» ou «XL» agissent directement sur la bride de
déclenchement avec sa force de maintien et fixent en position zéro l’axe de
commutation positionné par trois billes. En cas de collision, l'axe de
commutation bascule, pousse avec la bride de déclenchement la coupelle de
ressort en direction du fond du boîtier et la came de contacteur se détache de
l'élément de commande du microrupteur. La tension de commande appliquée
est interrompue.
1 Connecteur à brides 3 pôles 2 Microrupteur en position de repos 3 Microrupteur déclenché
Fig. 5 Schéma de fonctionnement
NONC
3
1
2
3
1
2
R 1,2k
D1
321
14
2
3
Signal
GND
24 V DC
2
C
1
3
2

Table of Contents