EasyManua.ls Logo

Abicor Binzel CAT2 - Descripción del Funcionamiento

Abicor Binzel CAT2
Print Icon
To Next Page IconTo Next Page
To Next Page IconTo Next Page
To Previous Page IconTo Previous Page
To Previous Page IconTo Previous Page
Loading...
ES - 13
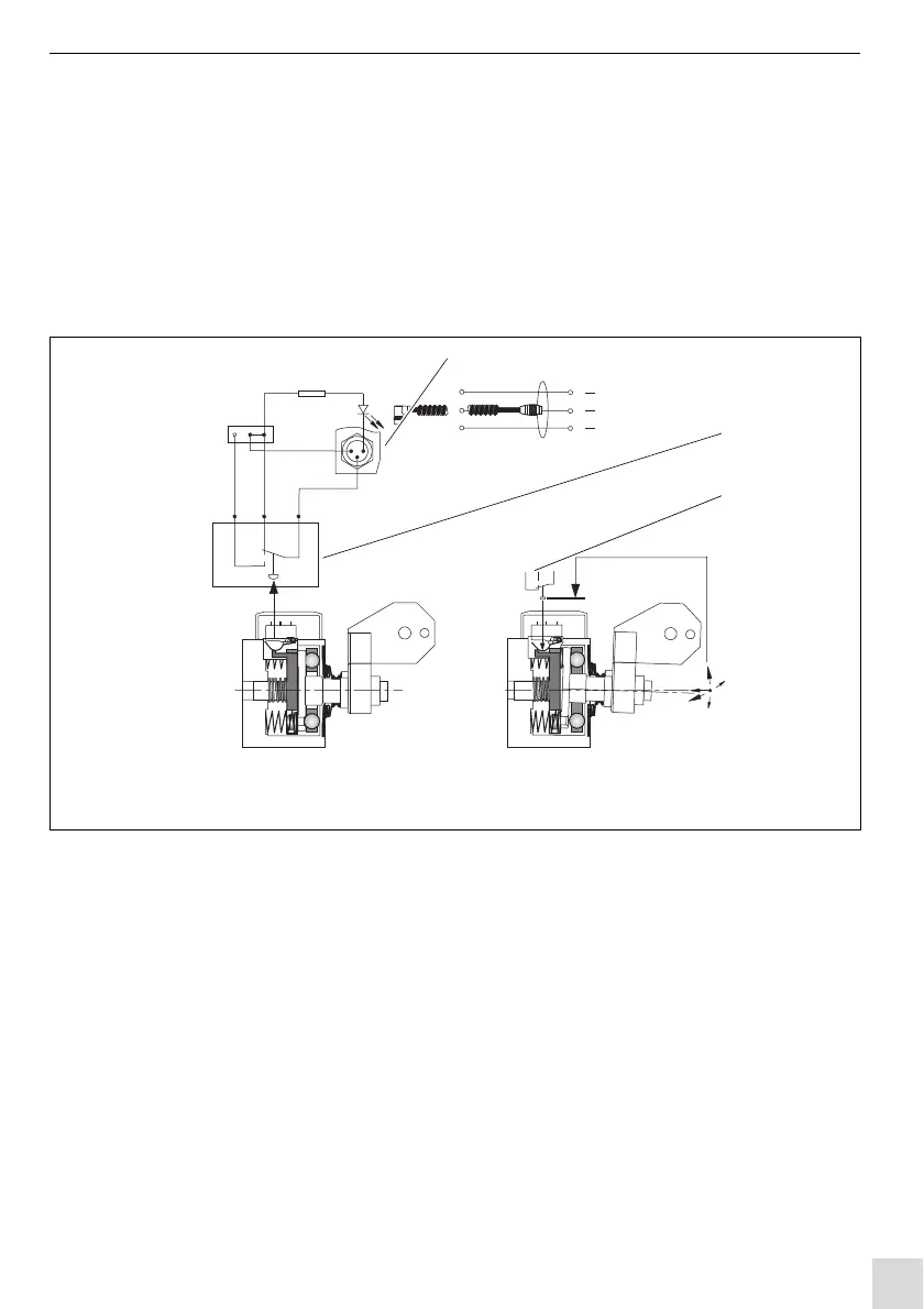
CAT2 5 Descripción del funcionamiento
5 Descripción del funcionamiento
Los muelles utilizados "S", "M", "L" o "XL" actúan directamente sobre la brida
de disparo, con su fuerza de retención, y fijan el eje de conmutación
posicionado por esferas en posición cero. En caso de colisión, el eje de
conmutación vuelca, la brida de disparo empuja la caja de resorte en
dirección de la base de la carcasa y la leva de avance se suelta del elemento
de accionamiento del microinterruptor. Se interrumpe la tensión de
conmutación aplicada.
1 Clavija de brida de 3 polos 2 Microinterruptor en posición de
reposo
3 Microinterruptor disparado
Fig. 5 Diagrama funcional
NONC
3
1
2
3
1
2
R 1,2k
D1
321
14
2
3
Signal
GND
24 V DC
2
C
1
3
2

Table of Contents