EasyManua.ls Logo

Agilent Technologies 35670A

Agilent Technologies 35670A
52 pages
To Next Page IconTo Next Page
To Next Page IconTo Next Page
To Previous Page IconTo Previous Page
To Previous Page IconTo Previous Page
Loading...
Service Guide 4
Agilent 35670A Supplement 19
To troubleshoot the power supply
Step 5: Replace the bullet concerning reconnecting assemblies:
Reconnect one assembly at a time in the following order:
1 A17 CPU (A17 P10 to A99 J7)
2 A102 Power Inverter (cable to A17 P13)
3 A11 Keyboard Controller (Cable to A17 P1)
4 A100 Disk Drive (cable to A17 P3)
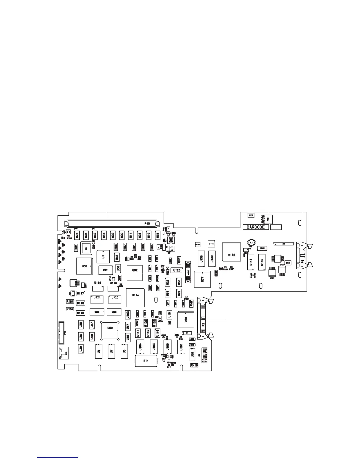
The illustration for component locator shows new connector
locations.
Page in original guide 4-13
Figure 6 A17 CPU board connector locator, component side
P3
Motherboard connector
Keyboard
connector
Disk drive
connector
Inverter power
connector
P1
P13
P10
P3

Other manuals for Agilent Technologies 35670A

Related product manuals